推奨利用人数
40人以上
【成約済み】KSKビル 2階
- 所在地:東京都新宿区市谷砂土原町1丁目2番34号
- 交通:東京メトロ有楽町線「市ケ谷」駅徒歩1分
- 交通2:都営大江戸線「牛込神楽坂」駅徒歩12分
- 交通3:JR中央・総武線「四ツ谷」駅徒歩16分
| 賃料:-- (税別) | 管理費:286,800円 (税別) |
| 敷金:10ヶ月- | 礼金:0ヶ月 |
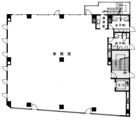
| 面積:316.03m² | 所在階:地上2階 |
| 間取り:事務所 | 築年月:1993年03月 |
| 賃料/管理費 | -- (税別)/286,800円 (税別) | フリーレント | 0ヶ月 |
|---|---|---|---|
| 敷金/礼金 | 10ヶ月/0ヶ月 | 内見・入居 | 相談 |
| 間取り | 事務所 | 面積 | 316.03m² |
| 所在階 | 地上2階 | 最大スペース | |
| 住所 | 東京都新宿区市谷砂土原町1丁目2番34号 | 最寄駅 | 東京メトロ有楽町線「市ケ谷」駅徒歩1分 都営大江戸線「牛込神楽坂」駅徒歩12分 JR中央・総武線「四ツ谷」駅徒歩16分 |
| その他交通 | 築年月 | 1993年03月 | |
| 方角 | 構造 | 鉄骨鉄筋コンクリート造(SRC造) 4階建 | |
| 契約期間 | その他 | 契約形態 | |
| 償却 | 0ヶ月 | 設備 | エレベーター , OAフロア |
| 更新料 | 更新日 | 2025年09月11日 | |
| 備考 | |||



お問い合わせの際は、「部屋No.50514」とお伝えください。





























新耐震基準の賃貸オフィスビルです
24時間利用可、天井高2.5m以上、OAフロア、個別空調、24時間セキュリティ
専有部分に男女別トイレがあります
周辺にはコンビニや飲食店があり、ランチにも便利です