推奨利用人数
15人~19人
【成約済み】中野ビル(九段北) 2階
- 所在地:東京都千代田区九段北4丁目3番15号
- 交通:JR中央線「市ケ谷」駅徒歩5分
- 交通2:東京メトロ有楽町線「飯田橋」駅徒歩13分
- 交通3:―
| 賃料:-- (税別) | 管理費:35,000円 (税別) |
| 敷金:3ヶ月- | 礼金:1ヶ月 |
| 面積:110.64m² | 所在階:地上2階 |
| 間取り:事務所 | 築年月:1978年04月 |
| 賃料/管理費 | -- (税別)/35,000円 (税別) | フリーレント | 0ヶ月 |
|---|---|---|---|
| 敷金/礼金 | 3ヶ月/1ヶ月 | 内見・入居 | 内見可 |
| 間取り | 事務所 | 面積 | 110.64m² |
| 所在階 | 地上2階 | 最大スペース | |
| 住所 | 東京都千代田区九段北4丁目3番15号 | 最寄駅 | JR中央線「市ケ谷」駅徒歩5分 東京メトロ有楽町線「飯田橋」駅徒歩13分 ― |
| その他交通 | 築年月 | 1978年04月 | |
| 方角 | 構造 | 鉄筋コンクリート造(RC造) 4階建 | |
| 契約期間 | 応相談 | 契約形態 | 普通借家 |
| 償却 | 0ヶ月 | 設備 | OAフロア |
| 更新料 | 1ヶ月 | 更新日 | 2025年09月11日 |
| 備考 | |||



お問い合わせの際は、「部屋No.50518」とお伝えください。





























1978年竣工、地上4階建て赤レンガ張りの外観のオフィスです。外濠公園に面して立地しており、春には公園の桜が楽しめます。
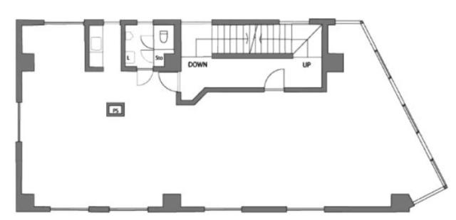
1フロア約34坪、1フロア1テナント利用、室内には専用のトイレと給湯設備があります。
周辺は比較的落ち着いたエリア、駅周辺には飲食店や金融機関などもあり利便性も良好です。市ヶ谷駅はJRや地下鉄が利用できますので都内各所へのアクセスも良好です。