推奨利用人数
20人~24人
【成約済み】HANROKUビル 3階
- 所在地:東京都新宿区歌舞伎町2丁目1番2号
- 交通:東京メトロ副都心線「新宿三丁目」駅徒歩1分
- 交通2:都営大江戸線「東新宿」駅徒歩5分
- 交通3:JR山手線「新宿」駅徒歩9分
| 賃料:-- (税別) | 管理費:149,100円 (税別) |
| 敷金:7ヶ月- | 礼金:1ヶ月 |
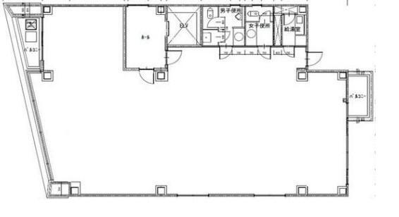
| 面積:164.2m² | 所在階:地上3階 |
| 間取り:事務所 | 築年月:1989年01月 |
| 賃料/管理費 | -- (税別)/149,100円 (税別) | フリーレント | 0ヶ月 |
|---|---|---|---|
| 敷金/礼金 | 7ヶ月/1ヶ月 | 内見・入居 | 内見可 |
| 間取り | 事務所 | 面積 | 164.2m² |
| 所在階 | 地上3階 | 最大スペース | |
| 住所 | 東京都新宿区歌舞伎町2丁目1番2号 | 最寄駅 | 東京メトロ副都心線「新宿三丁目」駅徒歩1分 都営大江戸線「東新宿」駅徒歩5分 JR山手線「新宿」駅徒歩9分 |
| その他交通 | 築年月 | 1989年01月 | |
| 方角 | 構造 | 鉄骨鉄筋コンクリート造(SRC造) 9階建 | |
| 契約期間 | 2年間 | 契約形態 | 普通借家 |
| 償却 | 2ヶ月 | 設備 | エレベーター |
| 更新料 | 1ヶ月 | 更新日 | 2025年09月11日 |
| 備考 | |||
| その他費用 | ・指定保証会社加入必須 | ||



お問い合わせの際は、「部屋No.50525」とお伝えください。





























9階建ての新耐震基準ビルです
人気の1フロア1テナント、土日・祝日利用可、エアコン2台以上、24時間セキュリティ
専有部分に男女別トイレあり