推奨利用人数
15人~19人
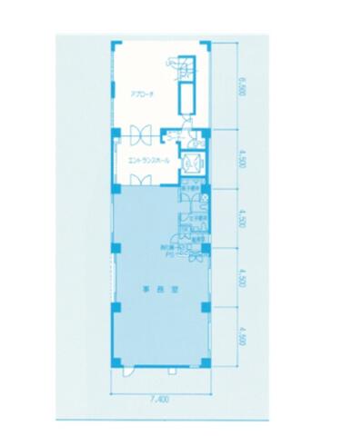
江戸川橋STビル 1階
- 所在地:東京都新宿区水道町1番19号
- 交通:東京メトロ有楽町線「江戸川橋」駅徒歩5分
- 交通2:東京メトロ東西線「神楽坂」駅徒歩8分
- 交通3:都営大江戸線「牛込神楽坂」駅徒歩13分
| 賃料:298,000円 (税別) | 管理費:0円 (税別) |
| 敷金:6ヶ月- | 礼金:0ヶ月 |
| 面積:100.03m² | 所在階:地上1階 |
| 間取り:事務所 | 築年月:1992年09月 |
| 賃料/管理費 | 298,000円 (税別)/0円 (税別) | フリーレント | 0ヶ月 |
|---|---|---|---|
| 敷金/礼金 | 6ヶ月/0ヶ月 | 内見・入居 | 内見可 |
| 間取り | 事務所 | 面積 | 100.03m² |
| 所在階 | 地上1階 | 最大スペース | |
| 住所 | 東京都新宿区水道町1番19号 | 最寄駅 | 東京メトロ有楽町線「江戸川橋」駅徒歩5分 東京メトロ東西線「神楽坂」駅徒歩8分 都営大江戸線「牛込神楽坂」駅徒歩13分 |
| その他交通 | 築年月 | 1992年09月 | |
| 方角 | 構造 | 鉄骨鉄筋コンクリート造(SRC造) 6階建 | |
| 契約期間 | 2年間 | 契約形態 | 普通借家 |
| 償却 | 2ヶ月 | 設備 | エレベーター , OAフロア |
| 更新料 | 0ヶ月 | 更新日 | 2025年09月11日 |
| 備考 | ・1階:事務所仕様、2024年2月 内装(壁・天井)リフォーム済 | ||



お問い合わせの際は、「部屋No.50553」とお伝えください。





























2024年6月 外装(外壁・屋根)リフォーム済
人気の1フロア1テナント、24時間利用可、土日・祝日利用可です
24時間セキュリティで安心です
専有部分に男女別トイレあり
周辺にはコンビニがあり便利です