推奨利用人数
25人~29人
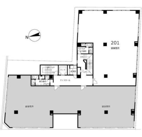
【成約済み】廣池ビルディング 201号室
- 所在地:東京都新宿区高田馬場1丁目21番13号
- 交通:東京メトロ東西線「高田馬場」駅徒歩3分
- 交通2:東京メトロ副都心線「西早稲田」駅徒歩8分
- 交通3:JR山手線「新大久保」駅徒歩15分
| 賃料:-- (税別) | 管理費:0円 (税別) |
| 敷金:6ヶ月- | 礼金:2ヶ月 |
| 面積:184.63m² | 所在階:地上2階 |
| 間取り:事務所 | 築年月:1985年07月 |
| 賃料/管理費 | -- (税別)/0円 (税別) | フリーレント | 0ヶ月 |
|---|---|---|---|
| 敷金/礼金 | 6ヶ月/2ヶ月 | 内見・入居 | 内見可 |
| 間取り | 事務所 | 面積 | 184.63m² |
| 所在階 | 地上2階 | 最大スペース | |
| 住所 | 東京都新宿区高田馬場1丁目21番13号 | 最寄駅 | 東京メトロ東西線「高田馬場」駅徒歩3分 東京メトロ副都心線「西早稲田」駅徒歩8分 JR山手線「新大久保」駅徒歩15分 |
| その他交通 | 築年月 | 1985年07月 | |
| 方角 | 構造 | 鉄筋コンクリート造(RC造) 5階建 | |
| 契約期間 | 2年間 | 契約形態 | 普通借家 |
| 償却 | 0ヶ月 | 設備 | エレベーター |
| 更新料 | 1ヶ月 | 更新日 | 2025年09月11日 |
| 備考 | 201号室:2020年5月 内装全面(床・壁・天井・建具)リフォーム済 | ||
| その他費用 | ・駐車場:35,000円/月(税別) | ||



お問い合わせの際は、「部屋No.50554」とお伝えください。





























レンガ貼りの外壁 5階建ての新耐震基準ビルです
共用部分に男女別トイレあり 、エアコン、24時間セキュリティ