推奨利用人数
11人~12人
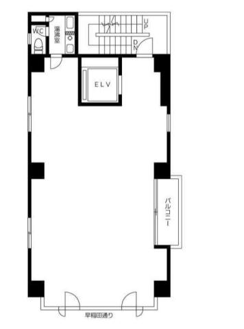
【成約済み】アライビル(高田馬場) 5階
- 所在地:東京都新宿区高田馬場2丁目14番6号
- 交通:東京メトロ東西線「高田馬場」駅徒歩5分
- 交通2:東京メトロ副都心線「西早稲田」駅徒歩11分
- 交通3:JR山手線「目白」駅徒歩16分
| 賃料:-- (税別) | 管理費:0円 (税別) |
| 敷金:6ヶ月- | 礼金:2ヶ月 |
| 面積:68.66m² | 所在階:地上5階 |
| 間取り:事務所 | 築年月:1993年01月 |
| 賃料/管理費 | -- (税別)/0円 (税別) | フリーレント | 0ヶ月 |
|---|---|---|---|
| 敷金/礼金 | 6ヶ月/2ヶ月 | 内見・入居 | 相談 |
| 間取り | 事務所 | 面積 | 68.66m² |
| 所在階 | 地上5階 | 最大スペース | |
| 住所 | 東京都新宿区高田馬場2丁目14番6号 | 最寄駅 | 東京メトロ東西線「高田馬場」駅徒歩5分 東京メトロ副都心線「西早稲田」駅徒歩11分 JR山手線「目白」駅徒歩16分 |
| その他交通 | 築年月 | 1993年01月 | |
| 方角 | 構造 | 鉄骨鉄筋コンクリート造(SRC造) 8階建 | |
| 契約期間 | 2年間 | 契約形態 | 普通借家 |
| 償却 | 0ヶ月 | 設備 | エレベーター |
| 更新料 | 1ヶ月 | 更新日 | 2025年09月11日 |
| 備考 | |||
| その他費用 | ・袖看板:5,000円/月 | ||



お問い合わせの際は、「部屋No.50558」とお伝えください。





























8階建ての新耐震基準ビルです
1階にはコンビニが入っていて便利です