推奨利用人数
20人~24人
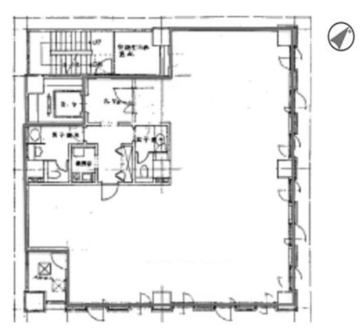
【成約済み】新京橋ビル(京橋2) 6階
- 所在地:東京都中央区京橋2丁目8番8号
- 交通:東京メトロ銀座線「京橋」駅徒歩3分
- 交通2:都営浅草線「宝町」駅徒歩3分
- 交通3:JR山手線「東京」駅徒歩8分
| 賃料:相談 (税別) | 管理費:相談 (税別) |
| 敷金:12ヶ月- | 礼金:0ヶ月 |
| 面積:146.64m² | 所在階:地上6階 |
| 間取り:事務所 | 築年月:1995年11月 |
| 賃料/管理費 | 相談 (税別)/相談 (税別) | フリーレント | 0ヶ月 |
|---|---|---|---|
| 敷金/礼金 | 12ヶ月/0ヶ月 | 内見・入居 | 内見可 |
| 間取り | 事務所 | 面積 | 146.64m² |
| 所在階 | 地上6階 | 最大スペース | |
| 住所 | 東京都中央区京橋2丁目8番8号 | 最寄駅 | 東京メトロ銀座線「京橋」駅徒歩3分 都営浅草線「宝町」駅徒歩3分 JR山手線「東京」駅徒歩8分 |
| その他交通 | 築年月 | 1995年11月 | |
| 方角 | 構造 | 鉄骨鉄筋コンクリート造(SRC造) 9階建 | |
| 契約期間 | 2年間 | 契約形態 | 普通借家 |
| 償却 | 0ヶ月 | 設備 | エレベーター , OAフロア |
| 更新料 | 0ヶ月 | 更新日 | 2025年09月11日 |
| 備考 | |||



お問い合わせの際は、「部屋No.50572」とお伝えください。





























1995年竣工、地上9階建、落ち着いたブラウンのタイル張りの外壁、下層階は石張りになっていて重厚感のある建物です。新耐震基準をクリアしています。
基準となるフロアは約45坪、1フロア1テナント利用室外に男女別のトイレがあり貸室内は効率よくレイアウトすることが可能です。セキュリティは機械警備を完備しています。
中央通り、昭和通りから少し入った角地に立地、周辺は比較的落ち着いた環境です。コンビニやランチにぴったりの飲食店なども点在していますので便利です。京橋駅、宝町駅からとそれぞれ徒歩3分の好立地です。