推奨利用人数
20人~24人
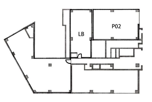
【成約済み】PALTビル 1階P02区画
- 所在地:東京都新宿区四谷4丁目28番8号
- 交通:東京メトロ丸の内線「新宿御苑前」駅徒歩5分
- 交通2:東京メトロ副都心線「新宿三丁目」駅徒歩11分
- 交通3:都営新宿線「曙橋」駅徒歩12分
| 賃料:-- (税別) | 管理費:123,600円 (税別) |
| 敷金:10ヶ月- | 礼金:1ヶ月 |
| 面積:136.2m² | 所在階:地上1階 |
| 間取り:事務所 | 築年月:1986年09月 |
| 賃料/管理費 | -- (税別)/123,600円 (税別) | フリーレント | 0ヶ月 |
|---|---|---|---|
| 敷金/礼金 | 10ヶ月/1ヶ月 | 内見・入居 | 内見可 |
| 間取り | 事務所 | 面積 | 136.2m² |
| 所在階 | 地上1階 | 最大スペース | |
| 住所 | 東京都新宿区四谷4丁目28番8号 | 最寄駅 | 東京メトロ丸の内線「新宿御苑前」駅徒歩5分 東京メトロ副都心線「新宿三丁目」駅徒歩11分 都営新宿線「曙橋」駅徒歩12分 |
| その他交通 | 築年月 | 1986年09月 | |
| 方角 | 構造 | 鉄骨鉄筋コンクリート造(SRC造) 10階建 | |
| 契約期間 | 応相談 | 契約形態 | 定期借家 |
| 償却 | 0ヶ月 | 設備 | エレベーター , OAフロア |
| 更新料 | 0ヶ月 | 更新日 | 2025年09月11日 |
| 備考 | |||



お問い合わせの際は、「部屋No.50602」とお伝えください。





























1986年竣工、重厚感のあるグレーの石張りの外観と大きなガラス窓が特徴的な外観の建物です。エントランスやEVホールも石張りで高級感があります。新耐震基準をクリアしています。
基準となるフロアは約230坪、募集時期により分割区画もございます。EV2基、フロアに男女別のトイレと給湯室があり使い勝手も良好です。セキュリティは有人警備で安心して24時間利用可能なオフィスです。
外苑西通り沿いに立地、周辺にはオフィスやマンションが並ぶ比較的落ち着いたエリアに立地しています。