推奨利用人数
11人~12人
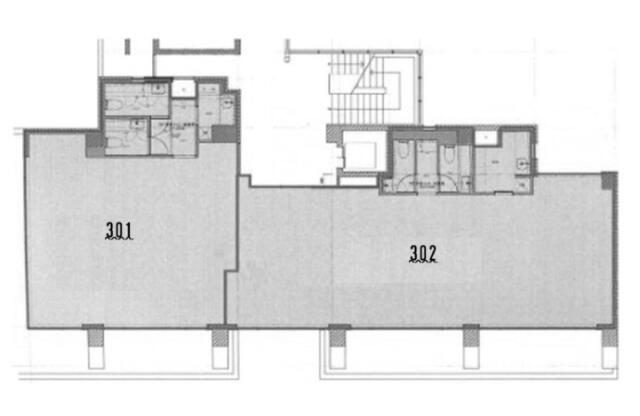
サンライズ青山ビル 301号室
- 所在地:東京都港区南青山2丁目13番2号
- 交通:東京メトロ銀座線「外苑前」駅徒歩3分
- 交通2:都営大江戸線「青山一丁目」駅徒歩5分
- 交通3:東京メトロ千代田線「乃木坂」駅徒歩13分
| 賃料:504,250円 (税別) | 管理費:0円 (税別) |
| 敷金:6ヶ月- | 礼金:1ヶ月 |
| 面積:66.68m² | 所在階:地上3階 |
| 間取り:事務所 | 築年月:1989年05月 |
| 賃料/管理費 | 504,250円 (税別)/0円 (税別) | フリーレント | 0ヶ月 |
|---|---|---|---|
| 敷金/礼金 | 6ヶ月/1ヶ月 | 内見・入居 | 内見可 |
| 間取り | 事務所 | 面積 | 66.68m² |
| 所在階 | 地上3階 | 最大スペース | |
| 住所 | 東京都港区南青山2丁目13番2号 | 最寄駅 | 東京メトロ銀座線「外苑前」駅徒歩3分 都営大江戸線「青山一丁目」駅徒歩5分 東京メトロ千代田線「乃木坂」駅徒歩13分 |
| その他交通 | 築年月 | 1989年05月 | |
| 方角 | 構造 | 鉄筋コンクリート造(RC造) 4階建 | |
| 契約期間 | 3年間 | 契約形態 | 定期借家 |
| 償却 | 0ヶ月 | 設備 | エレベーター , OAフロア |
| 更新料 | 1ヶ月 | 更新日 | 2025年09月11日 |
| 備考 | |||
| その他費用 | ・駐車場:月額63,000円 | ||



お問い合わせの際は、「部屋No.50650」とお伝えください。





























1985年竣工、地上4階建、茶色のタイル張りの外観、円柱が並ぶ邸宅のような重厚感のある建物です。新耐震基準をクリアしています。
青山通りから1本入った比較的静かな環境に立地、周辺は飲食店の多いエリアです。
各戸に専用のトイレと給湯設備があり使い勝手も良好。エントランスは吹抜けがあり広々としてお客様の印象も良いです。
外苑前駅と青山一丁目駅それぞれ徒歩5分ほどで利用可能。複数の路線が利用できますのでアクセスも良好です。