推奨利用人数
11人~12人
【成約済み】エヌエービル(岩本町) 6階
- 所在地:東京都千代田区岩本町2丁目1番8号
- 交通:JR中央線「神田」駅徒歩7分
- 交通2:東京メトロ日比谷線「小伝馬町」駅徒歩5分
- 交通3:都営新宿線「岩本町」駅徒歩3分
| 賃料:-- (税別) | 管理費:0円 (税別) |
| 敷金:8ヶ月- | 礼金:0ヶ月 |
| 面積:71.97m² | 所在階:地上6階 |
| 間取り:事務所 | 築年月:1988年03月 |
| 賃料/管理費 | -- (税別)/0円 (税別) | フリーレント | 0ヶ月 |
|---|---|---|---|
| 敷金/礼金 | 8ヶ月/0ヶ月 | 内見・入居 | 内見可 |
| 間取り | 事務所 | 面積 | 71.97m² |
| 所在階 | 地上6階 | 最大スペース | |
| 住所 | 東京都千代田区岩本町2丁目1番8号 | 最寄駅 | JR中央線「神田」駅徒歩7分 東京メトロ日比谷線「小伝馬町」駅徒歩5分 都営新宿線「岩本町」駅徒歩3分 |
| その他交通 | 築年月 | 1988年03月 | |
| 方角 | 構造 | 鉄骨鉄筋コンクリート造(SRC造) 6階建 | |
| 契約期間 | 2年間 | 契約形態 | 普通借家 |
| 償却 | 0ヶ月 | 設備 | エレベーター |
| 更新料 | 1ヶ月 | 更新日 | 2025年09月11日 |
| 備考 | |||
| その他費用 | ・保証会社加入要 | ||



お問い合わせの際は、「部屋No.50660」とお伝えください。





























1988年竣工、白いタイル張りの外観の建物です。新耐震基準をクリアしています。
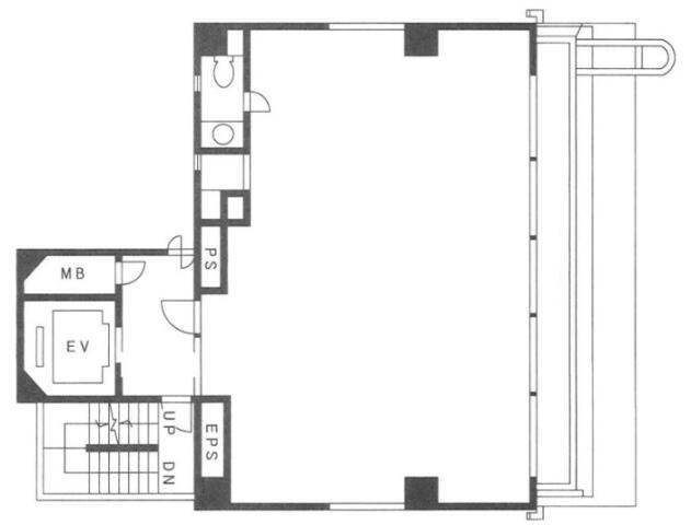
1フロア1テナント利用、基準となるオフィスは約26坪。室内に男女別のトイレと給湯室があり使い勝手も良好です。
セキュリティは機械警備を完備していますので安心して24時間利用可能です。
昭和通りから少し入った場所に立地しており、周辺は比較的落ち着いた周辺環境です。
神田駅や岩本町駅、小伝馬町駅も利用可能ですので都内各所へのアクセスも良好です!