推奨利用人数
15人~19人
【成約済み】シエルブルー浅草橋 10階
- 所在地:東京都台東区柳橋1丁目3番6号
- 交通:JR中央・総武線「浅草橋」駅徒歩3分
- 交通2:都営浅草線「東日本橋」駅徒歩7分
- 交通3:都営新宿線「馬喰横山」駅徒歩8分
| 賃料:-- (税別) | 管理費:0円 (税別) |
| 敷金:6ヶ月- | 礼金:1ヶ月 |
| 面積:122.49m² | 所在階:地上10階 |
| 間取り:事務所 | 築年月:2019年05月 |
| 賃料/管理費 | -- (税別)/0円 (税別) | フリーレント | 0ヶ月 |
|---|---|---|---|
| 敷金/礼金 | 6ヶ月/1ヶ月 | 内見・入居 | 内見可 |
| 間取り | 事務所 | 面積 | 122.49m² |
| 所在階 | 地上10階 | 最大スペース | |
| 住所 | 東京都台東区柳橋1丁目3番6号 | 最寄駅 | JR中央・総武線「浅草橋」駅徒歩3分 都営浅草線「東日本橋」駅徒歩7分 都営新宿線「馬喰横山」駅徒歩8分 |
| その他交通 | JR総武線快速「馬喰町」駅徒歩4分 | 築年月 | 2019年05月 |
| 方角 | 構造 | 鉄骨構造(S造) 10階建 | |
| 契約期間 | 3年間 | 契約形態 | 普通借家 |
| 償却 | 0ヶ月 | 設備 | エレベーター , OAフロア |
| 更新料 | 1ヶ月 | 更新日 | 2025年09月11日 |
| 備考 | ・女子トイレは条例に基づく「誰でもトイレ」となります。 | ||
| その他費用 | ・町内会費・看板料については別途必要になる場合あり | ||



お問い合わせの際は、「部屋No.50665」とお伝えください。





























2019年5月竣工、シックな黒の外壁にガラスカーテンウォールのスタイリッシュな外観の建物です。新耐震基準をクリアしています。
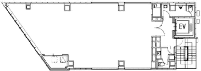
基準となるオフィスは1フロア約37坪、1フロア1テナント利用。EV1基、室外に男女別のトイレ、給湯室は室内にあり使い勝手も良好です。セキュリティは機械警備を導入していますので安心してご利用頂けます。
江戸通りの「浅草橋1丁目交差点」そばの好立地。神田川が近くを流れます。周辺には飲食店やコンビニも多くありますので利便性も良好です。最寄の浅草橋以外にも、東日本橋駅や馬喰横山駅も徒歩10分以内で利用可能ですので都内各所へのアクセスも良好です。