推奨利用人数
5人~6人
【成約済み】チャートビル 401号室
- 所在地:東京都目黒区碑文谷4丁目15番15号
- 交通:東急東横線「都立大学」駅徒歩10分
- 交通2:東急東横線「学芸大学」駅徒歩11分
- 交通3:―
| 賃料:-- | 管理費:3,000円 |
| 敷金:2ヶ月- | 礼金:1ヶ月 |
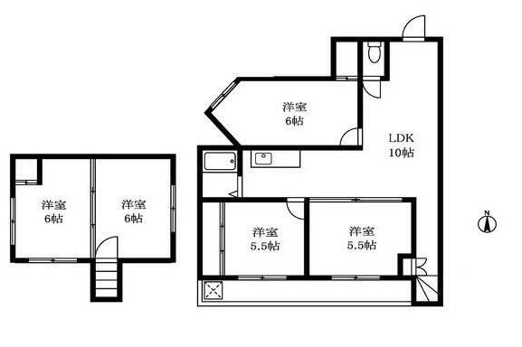
| 面積:74.25m² | 所在階:地上4階 |
| 間取り:4K以上 | 築年月:1977年11月 |
| 賃料/管理費 | --/3,000円 | フリーレント | 0ヶ月 |
|---|---|---|---|
| 敷金/礼金 | 2ヶ月/1ヶ月 | 内見・入居 | 内見可 |
| 間取り | 4K以上 | 面積 | 74.25m² |
| 所在階 | 地上4階 | 最大スペース | |
| 住所 | 東京都目黒区碑文谷4丁目15番15号 | 最寄駅 | 東急東横線「都立大学」駅徒歩10分 東急東横線「学芸大学」駅徒歩11分 ― |
| その他交通 | 築年月 | 1977年11月 | |
| 方角 | 構造 | 鉄骨構造(S造) 4階建 | |
| 契約期間 | 2年間 | 契約形態 | 普通借家 |
| 償却 | 0ヶ月 | 設備 | |
| 更新料 | 1ヶ月 | 更新日 | 2025年09月11日 |
| 入会金 | 1ヶ月 | ||
| 備考 | |||
| その他費用 | ・鍵交換代:20,000円~(税別) ・書類作成費:5,000円(税別) ・室内消毒費:15,000円(税別) ・くらしーど:15,000円(税別) ・ペット飼育の場合、敷金1ヶ月追加、償却1ヶ月 ・保証会社加入必須 ・初期費用のクレジット決済が可能 |
||



お問い合わせの際は、「部屋No.50695」とお伝えください。





























4階建ての賃貸マンションです
全居室フローリング、エアコン、インターネット対応、モニタ付インターホン