推奨利用人数
30人~39人
【成約済み】愛宕東洋ビル 7階
- 所在地:東京都港区愛宕1丁目3番4号
- 交通:東京メトロ銀座線「虎ノ門」駅徒歩8分
- 交通2:東京メトロ日比谷線「神谷町」駅徒歩8分
- 交通3:JR山手線「新橋」駅徒歩12分
| 賃料:相談 (税別) | 管理費:相談 (税別) |
| 敷金:相談- | 礼金:0ヶ月 |
| 面積:237.4m² | 所在階:地上7階 |
| 間取り:事務所 | 築年月:1995年04月 |
| 賃料/管理費 | 相談 (税別)/相談 (税別) | フリーレント | 0ヶ月 |
|---|---|---|---|
| 敷金/礼金 | 相談/0ヶ月 | 内見・入居 | 相談 |
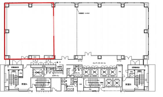
| 間取り | 事務所 | 面積 | 237.4m² |
| 所在階 | 地上7階 | 最大スペース | |
| 住所 | 東京都港区愛宕1丁目3番4号 | 最寄駅 | 東京メトロ銀座線「虎ノ門」駅徒歩8分 東京メトロ日比谷線「神谷町」駅徒歩8分 JR山手線「新橋」駅徒歩12分 |
| その他交通 | 築年月 | 1995年04月 | |
| 方角 | 構造 | 鉄骨構造(S造)&一部鉄骨鉄筋(SRC造) 16階建 | |
| 契約期間 | 5年間 | 契約形態 | 定期借家 |
| 償却 | 0ヶ月 | 設備 | エレベーター , OAフロア |
| 更新料 | 0ヶ月 | 更新日 | 2025年09月11日 |
| 備考 | ・エントランス:平日 7:30-20:00 土曜:8:30-17:00 | ||
| その他費用 | ・駐車場:月額50,000円 | ||



お問い合わせの際は、「部屋No.50736」とお伝えください。





























1995年竣工、地上16階建て、グレーのタイルと石張りの重厚感のある建物です。環二通りの「愛宕一丁目交差点」角地に立地しており視認性も良好です。新耐震基準をクリアしています。
基準となるフロアは約255坪、EV4基、共用部に男女別のトイレがあり、貸室内は余計な柱もありませんので効率よくレイアウトすることが可能です。施設内に機械式駐車場もございます。セキュリティは有人管理と機械警備を併用し安心です。
周辺には飲食店や各種金融機関、郵便局があり利便性も良好。建物内にコンビニエンスストアが入居していますので重宝します。
2020年に開業予定の新駅「虎ノ門ヒルズ駅」からは徒歩2分でアクセス可能、今後が期待されるエリアのオフィスです。