推奨利用人数
9人~10人
【成約済み】東服ビル 3階
- 所在地:東京都千代田区神田和泉町1丁目6番8号
- 交通:JR山手線「秋葉原」駅徒歩3分
- 交通2:都営新宿線「岩本町」駅徒歩7分
- 交通3:JR中央・総武線「浅草橋」駅徒歩12分
| 賃料:-- (税別) | 管理費:0円 (税別) |
| 敷金:6ヶ月- | 礼金:0ヶ月 |
| 面積:57.39m² | 所在階:地上3階 |
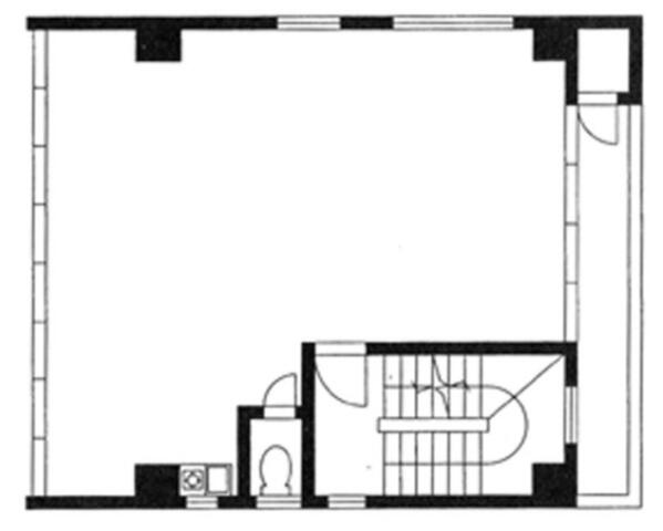
| 間取り:事務所 | 築年月:1965年01月 |
| 賃料/管理費 | -- (税別)/0円 (税別) | フリーレント | 0ヶ月 |
|---|---|---|---|
| 敷金/礼金 | 6ヶ月/0ヶ月 | 内見・入居 | 相談 |
| 間取り | 事務所 | 面積 | 57.39m² |
| 所在階 | 地上3階 | 最大スペース | |
| 住所 | 東京都千代田区神田和泉町1丁目6番8号 | 最寄駅 | JR山手線「秋葉原」駅徒歩3分 都営新宿線「岩本町」駅徒歩7分 JR中央・総武線「浅草橋」駅徒歩12分 |
| その他交通 | 築年月 | 1965年01月 | |
| 方角 | 構造 | 鉄骨構造(S造) 4階建 | |
| 契約期間 | その他 | 契約形態 | |
| 償却 | 2ヶ月 | 設備 | |
| 更新料 | 1ヶ月 | 更新日 | 2025年09月11日 |
| 備考 | ・EVなし | ||



お問い合わせの際は、「部屋No.61409」とお伝えください。





























1965年竣工、ダークトーンのタイル張りのレトロな雰囲気の建物です。
基準となるフロアは1フロア約17坪。1フロア1テナント利用のオフィスです。
室内に専用のトイレと給湯設備があり使い勝手も良好。昭和通から少し入った場所に立地、周辺は落ち着いたオフィス街です。
飲食店が周りに多くランチ環境も充実。金融機関も近くにありますので何かと便利です。
賑やかな秋葉原駅まで徒歩3分の好立地!都内各所のアクセスも良好です。