推奨利用人数
5人~6人
【成約済み】de-Zay 101号室
- 所在地:東京都豊島区南池袋4丁目8番4号
- 交通:東京メトロ副都心線「北参道」駅徒歩3分
- 交通2:東京メトロ有楽町線「東池袋」駅徒歩7分
- 交通3:JR山手線「目白」駅徒歩15分
| 賃料:-- (税別) | 管理費:0円 (税別) |
| 敷金:5ヶ月- | 礼金:1ヶ月 |
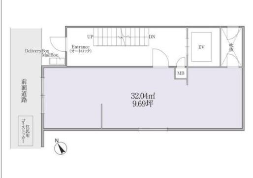
| 面積:32.04m² | 所在階:地上1階 |
| 間取り:事務所 | 築年月:2021年06月 |
| 賃料/管理費 | -- (税別)/0円 (税別) | フリーレント | 0ヶ月 |
|---|---|---|---|
| 敷金/礼金 | 5ヶ月/1ヶ月 | 内見・入居 | 内見可 |
| 間取り | 事務所 | 面積 | 32.04m² |
| 所在階 | 地上1階 | 最大スペース | |
| 住所 | 東京都豊島区南池袋4丁目8番4号 | 最寄駅 | 東京メトロ副都心線「北参道」駅徒歩3分 東京メトロ有楽町線「東池袋」駅徒歩7分 JR山手線「目白」駅徒歩15分 |
| その他交通 | 築年月 | 2021年06月 | |
| 方角 | 構造 | 鉄筋コンクリート造(RC造) 5階建 | |
| 契約期間 | 3年間 | 契約形態 | 普通借家 |
| 償却 | 2ヶ月 | 設備 | エレベーター |
| 更新料 | 1ヶ月 | 更新日 | 2025年09月11日 |
| 備考 |
・101号室はスケルトン渡しです
・エントランスオートロック有、カードキー2枚渡し(追加可能、1枚3,300円+設定手数料11,000円) ・解約予告3か月前 |
||



お問い合わせの際は、「部屋No.61469」とお伝えください。





























1フロア2室で独立性の高い全室角部屋。防音・遮音性に優れた作りになっています。
モニター付きインターホンやオートロックを導入しているのでセキュリティー面も安心です。
雑司が谷駅徒歩3分、他に東池袋駅、目白駅も徒歩圏内で3路線利用できます。
南池袋第2公園に隣接した立地なのでリフレッシュに良さそうです。