推奨利用人数
5人~6人
【成約済み】下根ビル 301号室
- 所在地:東京都豊島区池袋2丁目64番13号
- 交通:JR山手線「池袋」駅徒歩6分
- 交通2:東武東上線「北池袋」駅徒歩14分
- 交通3:―
| 賃料:-- | 管理費:30,000円 |
| 敷金:4ヶ月- | 礼金:1ヶ月 |
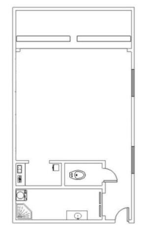
| 面積:45m² | 所在階:地上3階 |
| 間取り:1LDK | 築年月:1985年03月 |
| 賃料/管理費 | --/30,000円 | フリーレント | 0ヶ月 |
|---|---|---|---|
| 敷金/礼金 | 4ヶ月/1ヶ月 | 内見・入居 | 内見可 |
| 間取り | 1LDK | 面積 | 45m² |
| 所在階 | 地上3階 | 最大スペース | |
| 住所 | 東京都豊島区池袋2丁目64番13号 | 最寄駅 | JR山手線「池袋」駅徒歩6分 東武東上線「北池袋」駅徒歩14分 ― |
| その他交通 | 築年月 | 1985年03月 | |
| 方角 | 構造 | 鉄骨構造(S造) 4階建 | |
| 契約期間 | 2年間 | 契約形態 | 定期借家 |
| 償却 | 1ヶ月 | 設備 | |
| 更新料 | 更新日 | 2025年09月11日 | |
| 備考 | |||



お問い合わせの際は、「部屋No.61500」とお伝えください。





























1985年竣工で新耐震基準をクリア。黒を基調としたシックな外観です。1階が飲食店なので目印になります。
平和通り沿いには飲食店が多く、ランチタイムに困りません。
多くの路線が乗り入れる池袋駅が徒歩圏内なので、各地へのアクセスがスムーズです。