推奨利用人数
9人~10人
【成約済み】内神田KGビル 3階
- 所在地:東京都千代田区内神田3丁目10番1号
- 交通:JR山手線「神田」駅徒歩2分
- 交通2:東京メトロ丸の内線「淡路町」駅徒歩7分
- 交通3:東京メトロ銀座線「三越前」駅徒歩9分
| 賃料:-- (税別) | 管理費:41,250円 (税別) |
| 敷金:6ヶ月- | 礼金:0ヶ月 |
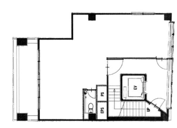
| 面積:54.55m² | 所在階:地上3階 |
| 間取り:事務所 | 築年月:1983年06月 |
| 賃料/管理費 | -- (税別)/41,250円 (税別) | フリーレント | 0ヶ月 |
|---|---|---|---|
| 敷金/礼金 | 6ヶ月/0ヶ月 | 内見・入居 | 内見可 |
| 間取り | 事務所 | 面積 | 54.55m² |
| 所在階 | 地上3階 | 最大スペース | |
| 住所 | 東京都千代田区内神田3丁目10番1号 | 最寄駅 | JR山手線「神田」駅徒歩2分 東京メトロ丸の内線「淡路町」駅徒歩7分 東京メトロ銀座線「三越前」駅徒歩9分 |
| その他交通 | 築年月 | 1983年06月 | |
| 方角 | 構造 | 鉄筋コンクリート造(RC造) 3階建 | |
| 契約期間 | 5年間 | 契約形態 | 定期借家 |
| 償却 | 2ヶ月 | 設備 | エレベーター |
| 更新料 | 1ヶ月 | 更新日 | 2025年09月11日 |
| 備考 | |||



お問い合わせの際は、「部屋No.61605」とお伝えください。





























1983年竣工、白いタイル張りにダークトーンの窓が映えるオフィスです。新耐震基準をクリアしています。
基準となるフロアは1フロア約16坪。EV1基、1フロア1テナント利用のオフィスです。
室内に専用のトイレがあり気兼ねなくご利用いただけます。
活気のある西口商店街沿いに立地していますので、人通りも多く店舗としてのご利用も相談可能です。
周辺には飲食店や金融機関なども多くランチ処も多数あり便利です!