推奨利用人数
15人~19人
【成約済み】新橋MMビル 7階
- 所在地:東京都港区新橋1丁目18番14号
- 交通:JR山手線「新橋」駅徒歩3分
- 交通2:都営三田線「内幸町」駅徒歩2分
- 交通3:東京メトロ銀座線「虎ノ門」駅徒歩9分
| 賃料:-- (税別) | 管理費:123,680円 (税別) |
| 敷金:10ヶ月- | 礼金:0ヶ月 |
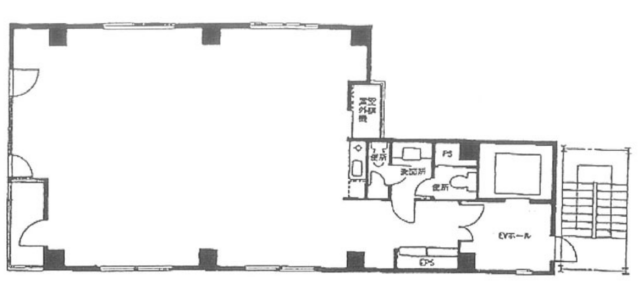
| 面積:102.21m² | 所在階:地上7階 |
| 間取り:事務所 | 築年月:1991年03月 |
| 賃料/管理費 | -- (税別)/123,680円 (税別) | フリーレント | 0ヶ月 |
|---|---|---|---|
| 敷金/礼金 | 10ヶ月/0ヶ月 | 内見・入居 | 内見可 |
| 間取り | 事務所 | 面積 | 102.21m² |
| 所在階 | 地上7階 | 最大スペース | |
| 住所 | 東京都港区新橋1丁目18番14号 | 最寄駅 | JR山手線「新橋」駅徒歩3分 都営三田線「内幸町」駅徒歩2分 東京メトロ銀座線「虎ノ門」駅徒歩9分 |
| その他交通 | 築年月 | 1991年03月 | |
| 方角 | 構造 | 鉄骨構造(S造) 10階建 | |
| 契約期間 | その他 | 契約形態 | |
| 償却 | 2ヶ月 | 設備 | エレベーター |
| 更新料 | 1ヶ月 | 更新日 | 2025年09月11日 |
| 備考 | |||



お問い合わせの際は、「部屋No.61808」とお伝えください。





























⇒新橋MMビルの現地を見に行った担当者が書いた、画像たっぷり&コメント付きブログはこちら!