推奨利用人数
25人~29人
【成約済み】虎ノ門第2ワイコービル 8階
- 所在地:東京都港区虎ノ門5丁目2番6号
- 交通:東京メトロ日比谷線「神谷町」駅徒歩1分
- 交通2:都営三田線「御成門」駅徒歩8分
- 交通3:東京メトロ銀座線「虎ノ門」駅徒歩9分
| 賃料:相談 (税別) | 管理費:相談 (税別) |
| 敷金:相談- | 礼金:0ヶ月 |
| 面積:191.8m² | 所在階:地上8階 |
| 間取り:事務所 | 築年月:1993年06月 |
| 賃料/管理費 | 相談 (税別)/相談 (税別) | フリーレント | 0ヶ月 |
|---|---|---|---|
| 敷金/礼金 | 相談/0ヶ月 | 内見・入居 | 内見可 |
| 間取り | 事務所 | 面積 | 191.8m² |
| 所在階 | 地上8階 | 最大スペース | |
| 住所 | 東京都港区虎ノ門5丁目2番6号 | 最寄駅 | 東京メトロ日比谷線「神谷町」駅徒歩1分 都営三田線「御成門」駅徒歩8分 東京メトロ銀座線「虎ノ門」駅徒歩9分 |
| その他交通 | 築年月 | 1993年06月 | |
| 方角 | 構造 | 鉄骨構造(S造) 8階建 | |
| 契約期間 | 2年間 | 契約形態 | 普通借家 |
| 償却 | 0ヶ月 | 設備 | エレベーター |
| 更新料 | 更新日 | 2025年09月11日 | |
| 備考 | |||



お問い合わせの際は、「部屋No.61854」とお伝えください。





























1993年竣工のオフィスビル、新耐震基準をクリアした建物です。最寄りの神谷町駅から徒歩1分、ガラス張りの外観は視認性良好です!
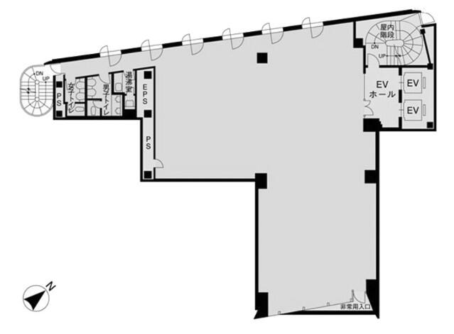
建物にはEV2基、男女別トイレと給湯室が室内にコンパクトにまとまっており、効率よくレイアウトが可能な間取りです。
機械警備も完備されていてセキュリティ面も安心してお使いいただけます。
周辺は飲食店も多く、ランチ時の楽しみになりそうです。