推奨利用人数
25人~29人
【成約済み】ウインローダービル 3階
- 所在地:東京都杉並区上荻2丁目37番7号
- 交通:JR中央・総武線「荻窪」駅徒歩14分
- 交通2:―
- 交通3:―
| 賃料:相談 (税別) | 管理費:相談 (税別) |
| 敷金:8ヶ月- | 礼金:0ヶ月 |
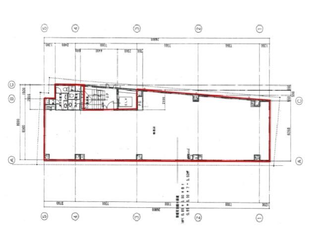
| 面積:178.18m² | 所在階:地上3階 |
| 間取り:事務所 | 築年月:1993年01月 |
| 賃料/管理費 | 相談 (税別)/相談 (税別) | フリーレント | 0ヶ月 |
|---|---|---|---|
| 敷金/礼金 | 8ヶ月/0ヶ月 | 内見・入居 | 相談 |
| 間取り | 事務所 | 面積 | 178.18m² |
| 所在階 | 地上3階 | 最大スペース | |
| 住所 | 東京都杉並区上荻2丁目37番7号 | 最寄駅 | JR中央・総武線「荻窪」駅徒歩14分 ― ― |
| その他交通 | 築年月 | 1993年01月 | |
| 方角 | 構造 | 鉄筋コンクリート造(RC造) 5階建 | |
| 契約期間 | 2年間 | 契約形態 | 普通借家 |
| 償却 | 0ヶ月 | 設備 | エレベーター |
| 更新料 | 0ヶ月 | 更新日 | 2025年09月11日 |
| 備考 | |||



お問い合わせの際は、「部屋No.62070」とお伝えください。





























1993年竣工で新耐震基準をクリア。間口の広い、石造りの外観で存在感のある建物です。
機械警備を導入しているので安心して利用できます。
また、駐車場完備なので、車移動や来客時の便利に利用できます。
貸室は使い勝手の良い1フロア1テナント、室内に男女別トイレが設置されています。