推奨利用人数
25人~29人
【成約済み】瀬川ビル 7階
- 所在地:東京都千代田区神田駿河台2丁目8番
- 交通:JR中央線「御茶ノ水」駅徒歩1分
- 交通2:東京メトロ千代田線「新御茶ノ水」駅徒歩1分
- 交通3:都営新宿線「小川町」駅徒歩8分
| 賃料:相談 (税別) | 管理費:相談 (税別) |
| 敷金:相談- | 礼金:0ヶ月 |
| 面積:190.05m² | 所在階:地上7階 |
| 間取り:事務所 | 築年月:1974年07月 |
| 賃料/管理費 | 相談 (税別)/相談 (税別) | フリーレント | 0ヶ月 |
|---|---|---|---|
| 敷金/礼金 | 相談/0ヶ月 | 内見・入居 | 相談 |
| 間取り | 事務所 | 面積 | 190.05m² |
| 所在階 | 地上7階 | 最大スペース | |
| 住所 | 東京都千代田区神田駿河台2丁目8番 | 最寄駅 | JR中央線「御茶ノ水」駅徒歩1分 東京メトロ千代田線「新御茶ノ水」駅徒歩1分 都営新宿線「小川町」駅徒歩8分 |
| その他交通 | 築年月 | 1974年07月 | |
| 方角 | 構造 | 鉄骨鉄筋コンクリート造(SRC造) 9階建 | |
| 契約期間 | その他 | 契約形態 | |
| 償却 | 0ヶ月 | 設備 | エレベーター , OAフロア |
| 更新料 | 更新日 | 2025年09月11日 | |
| 備考 | |||



お問い合わせの際は、「部屋No.62289」とお伝えください。





























1974年竣工、白い吹付の外観の建物です。耐震補強工事実施済みです。
JR線御茶ノ水駅「聖橋口」目の前の駅前オフィスです。
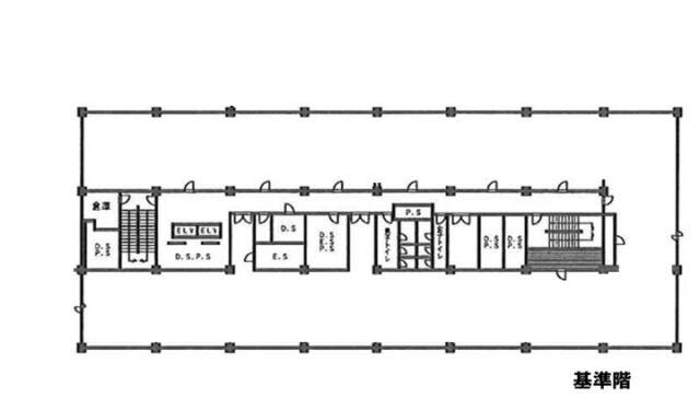
基準となるフロアは1フロア約260坪。EV2基、募集時期やフロアにより分割区画がございます。
共用部に男女別のトイレ、給湯室があり貸室内は効率よくレイアウトすることが可能です。セキュリティは機械警備を導入済みです。
駅前の茗渓通り沿いに立地。周辺は飲食店やコンビニ、金融機関などが揃い利便性も良好です。複数の路線が利用できるアクセスの良いオフィスです!