推奨利用人数
25人~29人
【成約済み】第3大東ビル 4階
- 所在地:東京都千代田区鍛冶町1丁目5番6号
- 交通:JR山手線「神田」駅徒歩3分
- 交通2:東京メトロ銀座線「三越前」駅徒歩5分
- 交通3:東京メトロ丸の内線「大手町」駅徒歩9分
| 賃料:-- (税別) | 管理費:162,840円 (税別) |
| 敷金:8ヶ月- | 礼金:0ヶ月 |
| 面積:179.44m² | 所在階:地上4階 |
| 間取り:事務所 | 築年月:1991年04月 |
| 賃料/管理費 | -- (税別)/162,840円 (税別) | フリーレント | 0ヶ月 |
|---|---|---|---|
| 敷金/礼金 | 8ヶ月/0ヶ月 | 内見・入居 | 内見可 |
| 間取り | 事務所 | 面積 | 179.44m² |
| 所在階 | 地上4階 | 最大スペース | |
| 住所 | 東京都千代田区鍛冶町1丁目5番6号 | 最寄駅 | JR山手線「神田」駅徒歩3分 東京メトロ銀座線「三越前」駅徒歩5分 東京メトロ丸の内線「大手町」駅徒歩9分 |
| その他交通 | JR総武本線「新日本橋」徒歩4分 | 築年月 | 1991年04月 |
| 方角 | 構造 | 鉄骨鉄筋コンクリート造(SRC造) 8階建 | |
| 契約期間 | 応相談 | 契約形態 | 普通借家 |
| 償却 | 2ヶ月 | 設備 | エレベーター , OAフロア |
| 更新料 | 1ヶ月 | 更新日 | 2025年09月11日 |
| 備考 | |||



お問い合わせの際は、「部屋No.62291」とお伝えください。





























1991年竣工、ブルーグレーのパネル張りのすっきりとした外観の建物です。新耐震基準をクリアしています。
中央通りから少し入った場所に立地しており、周辺は落ち着いたオフィス街です。
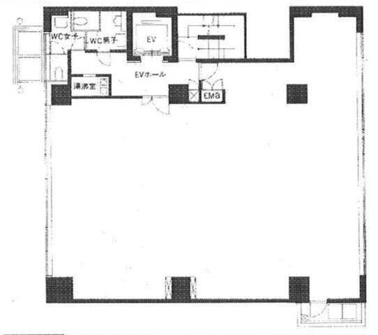
基準となるフロアは1フロア約54坪。EV1基、1フロア1テナント利用のオフィスです。
EVホールに男女別のトイレと給湯室があり、貸室内は効率よくレイアウトすることが可能です。
セキュリティは機械警備を導入していますので、安心してご利用いただけます。個別空調やOAフロアなど設備も充実しています。
周辺にはコンビニや飲食店も多くランチにも便利です。
複数の路線が利用できる神田駅からは徒歩3分の好立地!三越前駅・新日本橋駅へも徒歩5分ほどでアクセス可能です。