推奨利用人数
15人~19人
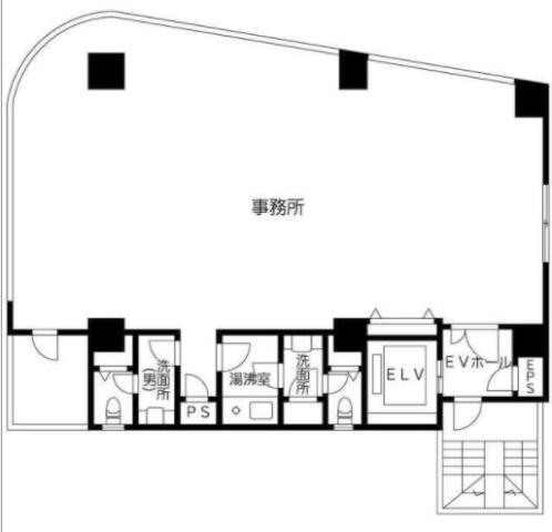
三宅屋ビル 5階
- 所在地:東京都港区浜松町1丁目9番12号
- 交通:JR山手線「浜松町」駅徒歩6分
- 交通2:都営浅草線「大門」駅徒歩4分
- 交通3:都営三田線「御成門」駅徒歩7分
| 賃料:335,000円 (税別) | 管理費:130,000円 (税別) |
| 敷金:6ヶ月- | 礼金:0ヶ月 |
| 面積:124.56m² | 所在階:地上5階 |
| 間取り:事務所 | 築年月:1993年02月 |
| 賃料/管理費 | 335,000円 (税別)/130,000円 (税別) | フリーレント | 0ヶ月 |
|---|---|---|---|
| 敷金/礼金 | 6ヶ月/0ヶ月 | 内見・入居 | 内見可 |
| 間取り | 事務所 | 面積 | 124.56m² |
| 所在階 | 地上5階 | 最大スペース | |
| 住所 | 東京都港区浜松町1丁目9番12号 | 最寄駅 | JR山手線「浜松町」駅徒歩6分 都営浅草線「大門」駅徒歩4分 都営三田線「御成門」駅徒歩7分 |
| その他交通 | 築年月 | 1993年02月 | |
| 方角 | 構造 | 鉄骨鉄筋コンクリート造(SRC造) 8階建 | |
| 契約期間 | 3年間 | 契約形態 | 普通借家 |
| 償却 | 2ヶ月 | 設備 | エレベーター |
| 更新料 | 1ヶ月 | 更新日 | 2025年09月11日 |
| 備考 | |||
| その他費用 | ・3年未満解約の場合、償却3ヶ月 | ||



お問い合わせの際は、「部屋No.62534」とお伝えください。





























1993年竣工で新耐震基準をクリアしています。建物は少し丸みを帯びたフォルム、角地の立地で視認性に優れています。
1フロア1テナントで室内に男女別トイレがある、使い勝手のよい造り。機械警備を導入しているのでセキュリティー面も安心です。
大門駅のほか、浜松町駅、御成門駅も利用可能で、各地へのアクセスがスムーズです。
駅周辺には銀行・郵便局、飲食店など店舗が充実しており、利便性も問題ありません。