推奨利用人数
13人~14人
【成約済み】ルート蛎殻町 3階
- 所在地:東京都中央区日本橋蛎殻町1丁目19番9号
- 交通:東京メトロ半蔵門線「水天宮前」駅徒歩4分
- 交通2:東京メトロ日比谷線「茅場町」駅徒歩6分
- 交通3:都営浅草線「人形町」駅徒歩9分
| 賃料:-- (税別) | 管理費:85,750円 (税別) |
| 敷金:8ヶ月- | 礼金:0ヶ月 |
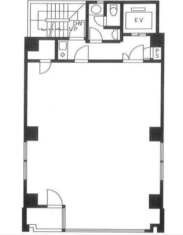
| 面積:84.28m² | 所在階:地上3階 |
| 間取り:事務所 | 築年月:1990年01月 |
| 賃料/管理費 | -- (税別)/85,750円 (税別) | フリーレント | 0ヶ月 |
|---|---|---|---|
| 敷金/礼金 | 8ヶ月/0ヶ月 | 内見・入居 | 相談 |
| 間取り | 事務所 | 面積 | 84.28m² |
| 所在階 | 地上3階 | 最大スペース | |
| 住所 | 東京都中央区日本橋蛎殻町1丁目19番9号 | 最寄駅 | 東京メトロ半蔵門線「水天宮前」駅徒歩4分 東京メトロ日比谷線「茅場町」駅徒歩6分 都営浅草線「人形町」駅徒歩9分 |
| その他交通 | 築年月 | 1990年01月 | |
| 方角 | 構造 | 鉄骨鉄筋コンクリート造(SRC造) 8階建 | |
| 契約期間 | 2年間 | 契約形態 | 普通借家 |
| 償却 | 20% | 設備 | エレベーター |
| 更新料 | 更新日 | 2025年09月11日 | |
| 備考 | |||
| その他費用 | ・保証会社加入要 | ||



お問い合わせの際は、「部屋No.62572」とお伝えください。





























1990年竣工、白い外壁にダークトーンのタイル張りの外観の建物です。新耐震基準をクリアしています。
2016年にはエントランスのリニューアル工事を実施しています。
基準となるフロアは1フロア約25坪。EV1基、1フロア1テナント利用のオフィスです。
共用部に男女別のトイレと給湯室がありますので、貸室内は効率よくレイアウトすることが可能です。
ルート蛎殻町の周辺はオフィスや住宅が並ぶエリア。水天宮前駅周辺は飲食店も多くランチは駅前が便利です。