推奨利用人数
9人~10人
【成約済み】ザパークハビオ小石川 403号室
- 所在地:東京都文京区小石川3丁目25番6号
- 交通:都営三田線「春日」駅徒歩8分
- 交通2:東京メトロ丸の内線「後楽園」駅徒歩8分
- 交通3:都営三田線「白山」駅徒歩14分
| 賃料:-- | 管理費:15,000円 |
| 敷金:2ヶ月- | 礼金:1ヶ月 |
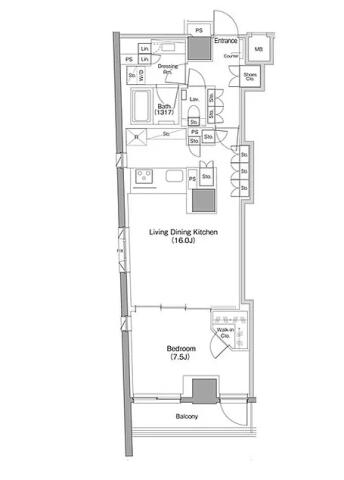
| 面積:57.39m² | 所在階:地上4階 |
| 間取り:1LDK | 築年月:2021年12月 |
| 賃料/管理費 | --/15,000円 | フリーレント | 0ヶ月 |
|---|---|---|---|
| 敷金/礼金 | 2ヶ月/1ヶ月 | 内見・入居 | 内見可 |
| 間取り | 1LDK | 面積 | 57.39m² |
| 所在階 | 地上4階 | 最大スペース | |
| 住所 | 東京都文京区小石川3丁目25番6号 | 最寄駅 | 都営三田線「春日」駅徒歩8分 東京メトロ丸の内線「後楽園」駅徒歩8分 都営三田線「白山」駅徒歩14分 |
| その他交通 | 築年月 | 2021年12月 | |
| 方角 | 構造 | 鉄筋コンクリート造(RC造) 7階建 | |
| 契約期間 | 2年間 | 契約形態 | 普通借家 |
| 償却 | 0ヶ月 | 設備 | エレベーター |
| 更新料 | 1ヶ月 | 更新日 | 2025年09月11日 |
| 備考 | ・近隣工事有 | ||



お問い合わせの際は、「部屋No.62961」とお伝えください。





























全住戸スマートホーム機器を標準装備、無料Wi-Fi完備。
防犯窓センサー、カラーモニター付きインターホン、オートロック、防犯カメラなどセキュリティ面も安心です。
宅配ボックスがあり、荷物の受け取りにも便利です。
ペット飼育、楽器演奏相談できます。(諸条件要確認)