推奨利用人数
15人~19人
【成約済み】TAF京橋ビル 2階
- 所在地:東京都中央区京橋1丁目19番4号
- 交通:東京メトロ銀座線「京橋」駅徒歩5分
- 交通2:都営浅草線「宝町」駅徒歩2分
- 交通3:JR山手線「東京」駅徒歩10分
| 賃料:-- (税別) | 管理費:92,580円 (税別) |
| 敷金:6ヶ月- | 礼金:1ヶ月 |
| 面積:102.07m² | 所在階:地上2階 |
| 間取り:事務所 | 築年月:1989年10月 |
| 賃料/管理費 | -- (税別)/92,580円 (税別) | フリーレント | 0ヶ月 |
|---|---|---|---|
| 敷金/礼金 | 6ヶ月/1ヶ月 | 内見・入居 | 内見可 |
| 間取り | 事務所 | 面積 | 102.07m² |
| 所在階 | 地上2階 | 最大スペース | |
| 住所 | 東京都中央区京橋1丁目19番4号 | 最寄駅 | 東京メトロ銀座線「京橋」駅徒歩5分 都営浅草線「宝町」駅徒歩2分 JR山手線「東京」駅徒歩10分 |
| その他交通 | 築年月 | 1989年10月 | |
| 方角 | 構造 | 鉄骨鉄筋コンクリート造(SRC造) 8階建 | |
| 契約期間 | 応相談 | 契約形態 | 普通借家 |
| 償却 | 相談 | 設備 | エレベーター |
| 更新料 | 更新日 | 2025年09月11日 | |
| 備考 | |||



お問い合わせの際は、「部屋No.63311」とお伝えください。





























1989年竣工、グレーの石張りの落ち着いた雰囲気の外観の建物です。新耐震基準をクリアしています。
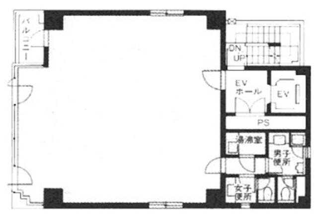
基準となるフロアは1フロア約31坪。EV1基、室内に専用のトイレと給湯設備があります。
昭和通りから1本入った場所に立地、周辺は落ち着いたオフィス街です。
周辺にはコンビニや飲食店があり、ランチ環境も充実。
東京駅も徒歩10分の好立地で都内各所への移動もスムーズです。