推奨利用人数
15人~19人
【成約済み】山口ビル(日本橋茅場町) 1棟
- 所在地:東京都中央区日本橋茅場町2丁目11番5号
- 交通:東京メトロ日比谷線「茅場町」駅徒歩1分
- 交通2:JR京葉線「八丁堀」駅徒歩4分
- 交通3:東京メトロ半蔵門線「水天宮前」駅徒歩10分
| 賃料:-- (税別) | 管理費:0円 (税別) |
| 敷金:1ヶ月- | 礼金:1ヶ月 |
| 面積:119.5m² | 所在階:地上1階 |
| 間取り:事務所 | 築年月:1972年09月 |
| 賃料/管理費 | -- (税別)/0円 (税別) | フリーレント | 0ヶ月 |
|---|---|---|---|
| 敷金/礼金 | 1ヶ月/1ヶ月 | 内見・入居 | 内見可 |
| 間取り | 事務所 | 面積 | 119.5m² |
| 所在階 | 地上1階 | 最大スペース | |
| 住所 | 東京都中央区日本橋茅場町2丁目11番5号 | 最寄駅 | 東京メトロ日比谷線「茅場町」駅徒歩1分 JR京葉線「八丁堀」駅徒歩4分 東京メトロ半蔵門線「水天宮前」駅徒歩10分 |
| その他交通 | 築年月 | 1972年09月 | |
| 方角 | 構造 | 鉄骨構造(S造) 4階建 | |
| 契約期間 | 2年間 | 契約形態 | 普通借家 |
| 償却 | 0ヶ月 | 設備 | |
| 更新料 | 1ヶ月 | 更新日 | 2025年09月11日 |
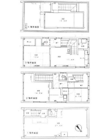
| 備考 | ・1-4F | ||



お問い合わせの際は、「部屋No.63406」とお伝えください。





























1972年竣工のオフィス。築年数は経ていますが外観をシルバーのパネル張りでリニューアルしていますので古さを感じさせません。
地上4階建、1フロア約10坪のオフィスです。トイレが2か所ありますので、男女別トイレとしてご利用いただけます。
新大橋通りを少し入った場所に立地。周辺にはコンビニや飲食店も多くランチ環境も充実しています。