推奨利用人数
25人~29人
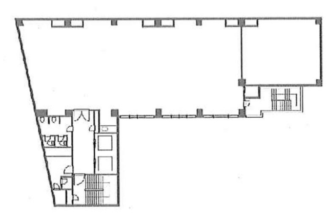
【成約済み】GG House 4階
- 所在地:東京都港区西新橋3丁目15番12号
- 交通:東京メトロ銀座線「虎ノ門」駅徒歩8分
- 交通2:東京メトロ日比谷線「神谷町」駅徒歩8分
- 交通3:都営三田線「御成門」駅徒歩8分
| 賃料:-- (税別) | 管理費:0円 (税別) |
| 敷金:10ヶ月- | 礼金:0ヶ月 |
| 面積:169.16m² | 所在階:地上4階 |
| 間取り:事務所 | 築年月:1975年01月 |
| 賃料/管理費 | -- (税別)/0円 (税別) | フリーレント | 0ヶ月 |
|---|---|---|---|
| 敷金/礼金 | 10ヶ月/0ヶ月 | 内見・入居 | 内見可 |
| 間取り | 事務所 | 面積 | 169.16m² |
| 所在階 | 地上4階 | 最大スペース | |
| 住所 | 東京都港区西新橋3丁目15番12号 | 最寄駅 | 東京メトロ銀座線「虎ノ門」駅徒歩8分 東京メトロ日比谷線「神谷町」駅徒歩8分 都営三田線「御成門」駅徒歩8分 |
| その他交通 | 築年月 | 1975年01月 | |
| 方角 | 構造 | 鉄骨鉄筋コンクリート造(SRC造) 10階建 | |
| 契約期間 | 2年間 | 契約形態 | 普通借家 |
| 償却 | 0ヶ月 | 設備 | エレベーター , OAフロア |
| 更新料 | 0ヶ月 | 更新日 | 2025年09月11日 |
| 備考 | |||
| その他費用 | ・駐車場:無料(1フロアにつき1台分) | ||



お問い合わせの際は、「部屋No.63704」とお伝えください。





























1フロア1テナントや共用部に男女別トイレだったりと気兼ねなく利用できるのも嬉しいポイントです。
1フロアにつき1台分の無料駐車スペース(空き要確認)があるので車での来客にも対応できます。