推奨利用人数
25人~29人
【成約済み】セブン三田ビル 7階
- 所在地:東京都港区芝5丁目32番11号
- 交通:JR山手線「田町」駅徒歩2分
- 交通2:都営三田線「三田」駅徒歩1分
- 交通3:都営三田線「芝公園」駅徒歩9分
| 賃料:-- (税別) | 管理費:0円 (税別) |
| 敷金:8ヶ月- | 礼金:0ヶ月 |
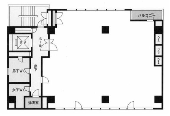
| 面積:169.75m² | 所在階:地上7階 |
| 間取り:事務所 | 築年月:1989年11月 |
| 賃料/管理費 | -- (税別)/0円 (税別) | フリーレント | 0ヶ月 |
|---|---|---|---|
| 敷金/礼金 | 8ヶ月/0ヶ月 | 内見・入居 | 相談 |
| 間取り | 事務所 | 面積 | 169.75m² |
| 所在階 | 地上7階 | 最大スペース | |
| 住所 | 東京都港区芝5丁目32番11号 | 最寄駅 | JR山手線「田町」駅徒歩2分 都営三田線「三田」駅徒歩1分 都営三田線「芝公園」駅徒歩9分 |
| その他交通 | 築年月 | 1989年11月 | |
| 方角 | 構造 | 鉄骨鉄筋コンクリート造(SRC造) 10階建 | |
| 契約期間 | その他 | 契約形態 | |
| 償却 | 1ヶ月 | 設備 | エレベーター , OAフロア |
| 更新料 | 1ヶ月 | 更新日 | 2025年09月11日 |
| 備考 | |||



お問い合わせの際は、「部屋No.63768」とお伝えください。





























1989年竣工で新耐震基準をクリア。学習塾の大きな看板が目印になります。
貸室は使い勝手の良い1フロア1テナントで室外に男女別トイレが設置されています。
機械警備システムを導入しているのでセキュリティー面も安心です。
銀行や郵便局、コンビニ、飲食店などが近くに揃っていて便利です。