推奨利用人数
40人以上
【成約済み】TOKYO YBビル 7階
- 所在地:東京都品川区北品川1丁目9番2号
- 交通:JR山手線「品川」駅徒歩8分
- 交通2:京急本線「北品川」駅徒歩3分
- 交通3:京急本線「新馬場」駅徒歩12分
| 賃料:相談 (税別) | 管理費:相談 (税別) |
| 敷金:12ヶ月- | 礼金:0ヶ月 |
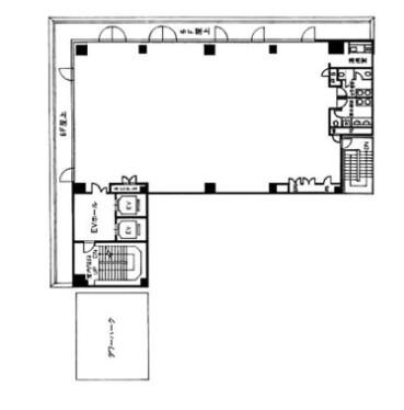
| 面積:291.04m² | 所在階:地上7階 |
| 間取り:事務所 | 築年月:1993年07月 |
| 賃料/管理費 | 相談 (税別)/相談 (税別) | フリーレント | 0ヶ月 |
|---|---|---|---|
| 敷金/礼金 | 12ヶ月/0ヶ月 | 内見・入居 | 相談 |
| 間取り | 事務所 | 面積 | 291.04m² |
| 所在階 | 地上7階 | 最大スペース | |
| 住所 | 東京都品川区北品川1丁目9番2号 | 最寄駅 | JR山手線「品川」駅徒歩8分 京急本線「北品川」駅徒歩3分 京急本線「新馬場」駅徒歩12分 |
| その他交通 | 築年月 | 1993年07月 | |
| 方角 | 構造 | 鉄骨構造(S造) 7階建 | |
| 契約期間 | その他 | 契約形態 | |
| 償却 | 0ヶ月 | 設備 | エレベーター , OAフロア |
| 更新料 | 更新日 | 2025年09月11日 | |
| 備考 | |||



お問い合わせの際は、「部屋No.64027」とお伝えください。





























1993年竣工で新耐震基準をクリア。7階建てでエレベーターは2基設置されています。機械警備を導入しているのでセキュリティー面も安心です。
運河にほど近い立地で、周辺はオフィスビルが建ち並ぶ落ち着いたエリア。駅周辺などに飲食店等が豊富にあるのでランチに困りません。
また、新幹線も含めて多くの路線が乗り入れる品川駅が利用できるので、各地へのアクセスがスムーズです。