推奨利用人数
15人~19人
【成約済み】芝前川ビル 2階
- 所在地:東京都港区芝3丁目21番14号
- 交通:都営三田線「芝公園」駅徒歩3分
- 交通2:都営三田線「三田」駅徒歩6分
- 交通3:JR山手線「田町」駅徒歩10分
| 賃料:相談 (税別) | 管理費:相談 (税別) |
| 敷金:10ヶ月- | 礼金:0ヶ月 |
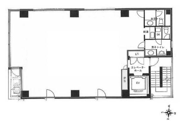
| 面積:122.88m² | 所在階:地上2階 |
| 間取り:事務所 | 築年月:1991年12月 |
| 賃料/管理費 | 相談 (税別)/相談 (税別) | フリーレント | 4ヶ月 |
|---|---|---|---|
| 敷金/礼金 | 10ヶ月/0ヶ月 | 内見・入居 | 相談 (2022年9月16日入居可予定) |
| 間取り | 事務所 | 面積 | 122.88m² |
| 所在階 | 地上2階 | 最大スペース | |
| 住所 | 東京都港区芝3丁目21番14号 | 最寄駅 | 都営三田線「芝公園」駅徒歩3分 都営三田線「三田」駅徒歩6分 JR山手線「田町」駅徒歩10分 |
| その他交通 | 築年月 | 1991年12月 | |
| 方角 | 構造 | 鉄筋コンクリート造(RC造) 6階建 | |
| 契約期間 | 2年間 | 契約形態 | 普通借家 |
| 償却 | 0ヶ月 | 設備 | エレベーター , OAフロア |
| 更新料 | 0ヶ月 | 更新日 | 2025年09月11日 |
| 備考 | 平日5:30~21:00/開 土5:30~18:00/開 ※時間外はエントランスよりセキュリティカードにて入館可 | ||



お問い合わせの際は、「部屋No.64178」とお伝えください。





























1991年竣工で新耐震基準をクリア。白タイル貼りの外観で清潔感があります。
貸室は1フロア1テナントで室内に男女別トイレが設置されているので使い勝手良好です。2面採光で明るい室内が魅力です!
機械警備を導入しているのでセキュリティー面も安心です。
コンビニ、飲食店等近くに点在していて利便性も問題ありません。