推奨利用人数
15人~19人
【成約済み】日本生命錦糸町ビル 8階
- 所在地:東京都墨田区江東橋3丁目7番8号
- 交通:JR中央・総武線「錦糸町」駅徒歩3分
- 交通2:都営新宿線「住吉」駅徒歩7分
- 交通3:―
| 賃料:相談 (税別) | 管理費:相談 (税別) |
| 敷金:相談- | 礼金:0ヶ月 |
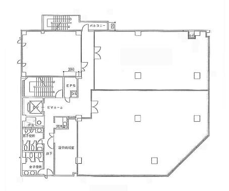
| 面積:119.01m² | 所在階:地上8階 |
| 間取り:事務所 | 築年月:1982年01月 |
| 賃料/管理費 | 相談 (税別)/相談 (税別) | フリーレント | 0ヶ月 |
|---|---|---|---|
| 敷金/礼金 | 相談/0ヶ月 | 内見・入居 | 内見可 |
| 間取り | 事務所 | 面積 | 119.01m² |
| 所在階 | 地上8階 | 最大スペース | |
| 住所 | 東京都墨田区江東橋3丁目7番8号 | 最寄駅 | JR中央・総武線「錦糸町」駅徒歩3分 都営新宿線「住吉」駅徒歩7分 ― |
| その他交通 | 築年月 | 1982年01月 | |
| 方角 | 構造 | 鉄骨鉄筋コンクリート造(SRC造) 8階建 | |
| 契約期間 | その他 | 契約形態 | 定期借家 |
| 償却 | 0ヶ月 | 設備 | エレベーター , OAフロア |
| 更新料 | 0ヶ月 | 更新日 | 2025年09月11日 |
| 備考 | |||



お問い合わせの際は、「部屋No.64683」とお伝えください。





























1982年竣工、8階建てで基準階は100坪超の存在感のあるオフィスです。
共用部に男女別トイレが設置されており、室内は効率よくレイアウト可能です。
複数路線利用可能な錦糸町駅が最寄りでアクセス良好!周辺にはコンビニや飲食店が多く、駅前には商業施設が充実していて利便性の高い環境です。