推奨利用人数
15人~19人
【成約済み】霊南坂ビル 3階
- 所在地:東京都港区赤坂1丁目14番2号
- 交通:東京メトロ南北線「六本木一丁目」駅徒歩5分
- 交通2:東京メトロ銀座線「虎ノ門」駅徒歩11分
- 交通3:東京メトロ千代田線「赤坂」駅徒歩13分
| 賃料:-- (税別) | 管理費:0円 (税別) |
| 敷金:6ヶ月- | 礼金:0ヶ月 |
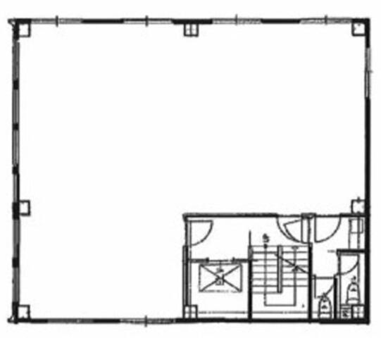
| 面積:104m² | 所在階:地上3階 |
| 間取り:事務所 | 築年月:1975年01月 |
| 賃料/管理費 | -- (税別)/0円 (税別) | フリーレント | 0ヶ月 |
|---|---|---|---|
| 敷金/礼金 | 6ヶ月/0ヶ月 | 内見・入居 | 内見可 |
| 間取り | 事務所 | 面積 | 104m² |
| 所在階 | 地上3階 | 最大スペース | |
| 住所 | 東京都港区赤坂1丁目14番2号 | 最寄駅 | 東京メトロ南北線「六本木一丁目」駅徒歩5分 東京メトロ銀座線「虎ノ門」駅徒歩11分 東京メトロ千代田線「赤坂」駅徒歩13分 |
| その他交通 | 築年月 | 1975年01月 | |
| 方角 | 構造 | 鉄骨構造(S造) 7階建 | |
| 契約期間 | その他 | 契約形態 | 定期借家 |
| 償却 | 0ヶ月 | 設備 | エレベーター |
| 更新料 | 1ヶ月 | 更新日 | 2025年09月11日 |
| 備考 | |||
| その他費用 | ・保証会社加入要 | ||



お問い合わせの際は、「部屋No.65186」とお伝えください。





























周辺は緑が多く落ち着いた街並みでありながらオフィスビルやホテル、コンサートホールなどもあり活気があるエリア!
ランチやアフターファイブも充実しそうです。
建物は1フロア1テナントで気兼ねなく利用できます。
また、窓が多いので採光が良好なのも魅力です。