推奨利用人数
15人~19人
【成約済み】サトケイビル 1階
- 所在地:東京都千代田区岩本町3丁目11番4号
- 交通:東京メトロ日比谷線「秋葉原」駅徒歩3分
- 交通2:都営新宿線「岩本町」駅徒歩3分
- 交通3:JR山手線「神田」駅徒歩10分
| 賃料:-- (税別) | 管理費:107,275円 (税別) |
| 敷金:8ヶ月- | 礼金:0ヶ月 |
| 面積:101.32m² | 所在階:地上1階 |
| 間取り:事務所 | 築年月:2021年12月 |
| 賃料/管理費 | -- (税別)/107,275円 (税別) | フリーレント | 0ヶ月 |
|---|---|---|---|
| 敷金/礼金 | 8ヶ月/0ヶ月 | 内見・入居 | 内見可 |
| 間取り | 事務所 | 面積 | 101.32m² |
| 所在階 | 地上1階 | 最大スペース | |
| 住所 | 東京都千代田区岩本町3丁目11番4号 | 最寄駅 | 東京メトロ日比谷線「秋葉原」駅徒歩3分 都営新宿線「岩本町」駅徒歩3分 JR山手線「神田」駅徒歩10分 |
| その他交通 | 築年月 | 2021年12月 | |
| 方角 | 構造 | 鉄骨構造(S造) 9階建 | |
| 契約期間 | その他 | 契約形態 | |
| 償却 | 0ヶ月 | 設備 | エレベーター , OAフロア |
| 更新料 | 0ヶ月 | 更新日 | 2025年09月11日 |
| 備考 | |||



お問い合わせの際は、「部屋No.65317」とお伝えください。





























2021年竣工、グレーの外壁にカラフルな窓が印象的な建物です。新耐震基準をクリアしています。
建物裏手は神田川、柳原通り沿いの閑静なオフィス街に立地しています。
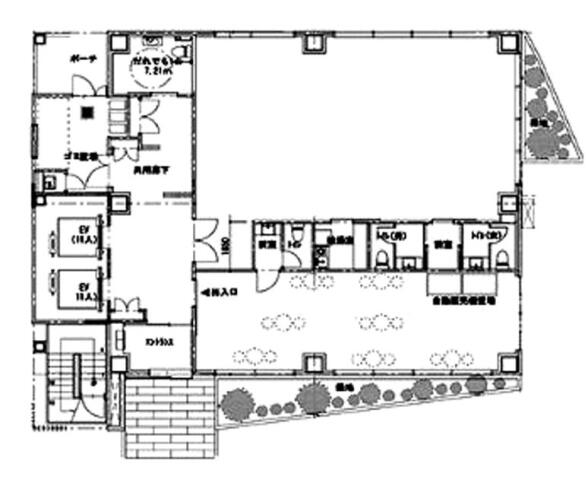
基準となるフロアは1フロア58坪。EV2基、1フロア1テナント利用のオフィスです。
室内に男女別のトイレと給湯室があり使い勝手も良好。セキュリティは機械警備を導入していますので安心です。
秋葉原駅、岩本町駅から徒歩3分の好立地。昭和通り沿いにでればコンビニや飲食店も多く便利です。