推奨利用人数
15人~19人
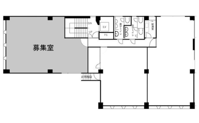
第1井上ビル 301号室
- 所在地:東京都中央区日本橋茅場町2丁目14番1号
- 交通:東京メトロ日比谷線「茅場町」駅徒歩1分
- 交通2:東京メトロ半蔵門線「水天宮前」駅徒歩9分
- 交通3:都営浅草線「日本橋」駅徒歩7分
| 賃料:371,150円 (税別) | 管理費:85,650円 (税別) |
| 敷金:8ヶ月- | 礼金:0ヶ月 |
| 面積:94.38m² | 所在階:地上3階 |
| 間取り:事務所 | 築年月:1972年08月 |
| 賃料/管理費 | 371,150円 (税別)/85,650円 (税別) | フリーレント | 0ヶ月 |
|---|---|---|---|
| 敷金/礼金 | 8ヶ月/0ヶ月 | 内見・入居 | 内見可 |
| 間取り | 事務所 | 面積 | 94.38m² |
| 所在階 | 地上3階 | 最大スペース | |
| 住所 | 東京都中央区日本橋茅場町2丁目14番1号 | 最寄駅 | 東京メトロ日比谷線「茅場町」駅徒歩1分 東京メトロ半蔵門線「水天宮前」駅徒歩9分 都営浅草線「日本橋」駅徒歩7分 |
| その他交通 | 築年月 | 1972年08月 | |
| 方角 | 構造 | 鉄骨鉄筋コンクリート造(SRC造) 8階建 | |
| 契約期間 | 2年間 | 契約形態 | 普通借家 |
| 償却 | 2ヶ月 | 設備 | エレベーター , OAフロア |
| 更新料 | 1ヶ月 | 更新日 | 2025年09月11日 |
| 備考 | |||
| その他費用 | ・袖看板:1枚30,000円、2枚50,000円 | ||



お問い合わせの際は、「部屋No.65337」とお伝えください。





























「第1井上ビル」は1972年竣工のオフィスビル、前面の黄色の外壁が個性的な建物です。 2011年に耐震改修工事実施済みです。
オフィスは共用部に男女別トイレと給湯設備があり、貸室内は効率よくレイアウトが可能です。セキュリティは機械警備を完備していますので、安心して24時間ご利用可能なオフィスです。
永代通りと新大橋通りから少し入った場所に立地しており、周辺は駅近ながら比較的落ち着いた環境です。