推奨利用人数
9人~10人
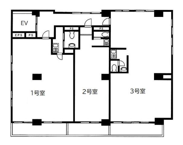
工新ビル 601号室
- 所在地:東京都新宿区高田馬場1丁目28番3号
- 交通:JR山手線「高田馬場」駅徒歩2分
- 交通2:東京メトロ副都心線「西早稲田」駅徒歩9分
- 交通3:―
| 賃料:170,000円 (税別) | 管理費:17,000円 (税別) |
| 敷金:3ヶ月- | 礼金:0ヶ月 |
| 面積:55.37m² | 所在階:地上6階 |
| 間取り:事務所 | 築年月:1978年01月 |
| 賃料/管理費 | 170,000円 (税別)/17,000円 (税別) | フリーレント | 0ヶ月 |
|---|---|---|---|
| 敷金/礼金 | 3ヶ月/0ヶ月 | 内見・入居 | 内見可 |
| 間取り | 事務所 | 面積 | 55.37m² |
| 所在階 | 地上6階 | 最大スペース | |
| 住所 | 東京都新宿区高田馬場1丁目28番3号 | 最寄駅 | JR山手線「高田馬場」駅徒歩2分 東京メトロ副都心線「西早稲田」駅徒歩9分 ― |
| その他交通 | 築年月 | 1978年01月 | |
| 方角 | 構造 | 鉄骨構造(S造) 8階建 | |
| 契約期間 | 2年間 | 契約形態 | 普通借家 |
| 償却 | 0ヶ月 | 設備 | エレベーター |
| 更新料 | 0.5ヶ月 | 更新日 | 2025年09月11日 |
| 備考 | |||



お問い合わせの際は、「部屋No.65341」とお伝えください。





























レンガタイル張りの外観の賃貸物件です。
フロアによっては分割区画があります。
室内は整形でレイアウトしやすい形状です。
周辺にはコンビニや飲食店が多数あり、ランチにも困りません。