推奨利用人数
15人~19人
エスパシオ新富町 6階
- 所在地:東京都中央区新富1丁目5番11号
- 交通:東京メトロ日比谷線「八丁堀」駅徒歩6分
- 交通2:東京メトロ有楽町線「新富町」駅徒歩2分
- 交通3:都営浅草線「宝町」駅徒歩6分
| 賃料:654,350円 (税別) | 管理費:56,900円 (税別) |
| 敷金:3ヶ月- | 礼金:1ヶ月 |
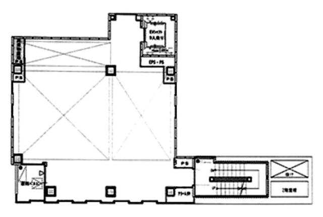
| 面積:94.05m² | 所在階:地上6階 |
| 間取り:事務所 | 築年月:2022年10月 |
| 賃料/管理費 | 654,350円 (税別)/56,900円 (税別) | フリーレント | 0ヶ月 |
|---|---|---|---|
| 敷金/礼金 | 3ヶ月/1ヶ月 | 内見・入居 | 内見可 |
| 間取り | 事務所 | 面積 | 94.05m² |
| 所在階 | 地上6階 | 最大スペース | |
| 住所 | 東京都中央区新富1丁目5番11号 | 最寄駅 | 東京メトロ日比谷線「八丁堀」駅徒歩6分 東京メトロ有楽町線「新富町」駅徒歩2分 都営浅草線「宝町」駅徒歩6分 |
| その他交通 | 東京メトロ有楽町線「銀座一丁目」駅10分 | 築年月 | 2022年10月 |
| 方角 | 構造 | 鉄骨鉄筋コンクリート造(SRC造) 11階建 | |
| 契約期間 | 2年間 | 契約形態 | 普通借家 |
| 償却 | 0ヶ月 | 設備 | エレベーター , OAフロア |
| 更新料 | 1ヶ月 | 更新日 | 2025年09月11日 |
| 備考 | |||



お問い合わせの際は、「部屋No.65601」とお伝えください。





























2022年秋竣工のオフィスです。新耐震基準をクリアしています。
基準となるフロアは1フロア約28坪。EV1基、1フロア1テナント利用のオフィスです。
スケルトンでの引き渡しとなりますので、こだわりの内装を楽しめます。
新大橋通り沿いに立地周辺には郵便局やコンビニ、飲食店などもあり利便性も良好です。