推奨利用人数
25人~29人
【成約済み】大手町佐野ビル 4階
- 所在地:東京都千代田区内神田1丁目7番8号
- 交通:JR山手線「神田」駅徒歩5分
- 交通2:東京メトロ千代田線「大手町」駅徒歩6分
- 交通3:東京メトロ丸の内線「淡路町」駅徒歩6分
| 賃料:-- (税別) | 管理費:0円 (税別) |
| 敷金:8ヶ月- | 礼金:0ヶ月 |
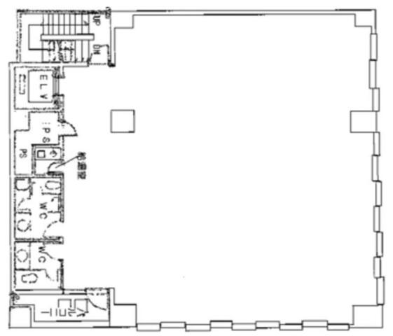
| 面積:194.08m² | 所在階:地上4階 |
| 間取り:事務所 | 築年月:1989年11月 |
| 賃料/管理費 | -- (税別)/0円 (税別) | フリーレント | 0ヶ月 |
|---|---|---|---|
| 敷金/礼金 | 8ヶ月/0ヶ月 | 内見・入居 | 内見可 |
| 間取り | 事務所 | 面積 | 194.08m² |
| 所在階 | 地上4階 | 最大スペース | |
| 住所 | 東京都千代田区内神田1丁目7番8号 | 最寄駅 | JR山手線「神田」駅徒歩5分 東京メトロ千代田線「大手町」駅徒歩6分 東京メトロ丸の内線「淡路町」駅徒歩6分 |
| その他交通 | 築年月 | 1989年11月 | |
| 方角 | 構造 | 鉄骨鉄筋コンクリート造(SRC造) 8階建 | |
| 契約期間 | 2年間 | 契約形態 | 普通借家 |
| 償却 | 1ヶ月 | 設備 | エレベーター |
| 更新料 | 1ヶ月 | 更新日 | 2025年09月11日 |
| 備考 | |||



お問い合わせの際は、「部屋No.65907」とお伝えください。





























1989年竣工、ダークグレーのタイル張りの外観の建物です。新耐震基準をクリアしています。
エントランスは御影石張りで高級感があります。1階は飲食店が入居していますので目印になります。
基準となるフロアは1フロア約58坪。EV1基、室内に専用のトイレと給湯室があります。
セキュリティは機械警備、OA床など設備面でも充実しています。
神田出世不動通り沿いに立地しており、周辺は飲食店が多くランチ環境も良好。
神田駅や小川町駅、淡路町駅、大手町駅へも徒歩5-6分で利用可能ですのでアクセスも便利です。