推奨利用人数
20人~24人
【成約済み】T’s BRIGHTIA吉祥寺Ⅱ 1C区画
- 所在地:東京都武蔵野市吉祥寺本町2丁目14番27号
- 交通:JR中央線「吉祥寺」駅徒歩5分
- 交通2:京王井の頭線「井の頭公園」駅徒歩17分
- 交通3:―
| 賃料:-- (税別) | 管理費:0円 (税別) |
| 敷金:10ヶ月- | 礼金:0ヶ月 |
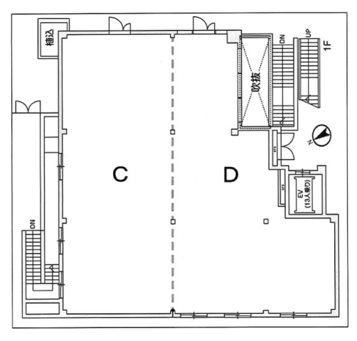
| 面積:136.13m² | 所在階:地上1階 |
| 間取り:事務所 | 築年月:2021年10月 |
| 賃料/管理費 | -- (税別)/0円 (税別) | フリーレント | 6ヶ月 |
|---|---|---|---|
| 敷金/礼金 | 10ヶ月/0ヶ月 | 内見・入居 | 内見可 |
| 間取り | 事務所 | 面積 | 136.13m² |
| 所在階 | 地上1階 | 最大スペース | |
| 住所 | 東京都武蔵野市吉祥寺本町2丁目14番27号 | 最寄駅 | JR中央線「吉祥寺」駅徒歩5分 京王井の頭線「井の頭公園」駅徒歩17分 ― |
| その他交通 | 築年月 | 2021年10月 | |
| 方角 | 構造 | 鉄骨構造(S造) 3階建 | |
| 契約期間 | 2年間 | 契約形態 | 普通借家 |
| 償却 | 0ヶ月 | 設備 | エレベーター , OAフロア |
| 更新料 | 0ヶ月 | 更新日 | 2025年09月11日 |
| 備考 | |||



お問い合わせの際は、「部屋No.65923」とお伝えください。





























西二条通り沿いに建つ、ガラス張りでデザイン性のある個性的な外観が目を惹く視認性の高い物件です!
最寄りの吉祥寺駅はJR中央線乗り入れで新宿駅や東京駅にも乗り換えなしでスムーズに移動できて便利です。
周辺は飲食店や商業施設があり、ランチ環境も充実しています。