推奨利用人数
11人~12人
【成約済み】銀座NFビル 5階
- 所在地:東京都中央区銀座2丁目12番5号
- 交通:都営浅草線「東銀座」駅徒歩3分
- 交通2:東京メトロ有楽町線「銀座一丁目」駅徒歩4分
- 交通3:東京メトロ銀座線「銀座」駅徒歩6分
| 賃料:-- (税別) | 管理費:0円 (税別) |
| 敷金:6ヶ月- | 礼金:0ヶ月 |
| 面積:71.27m² | 所在階:地上5階 |
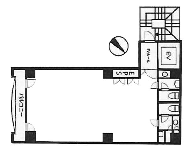
| 間取り:事務所 | 築年月:1992年03月 |
| 賃料/管理費 | -- (税別)/0円 (税別) | フリーレント | 0ヶ月 |
|---|---|---|---|
| 敷金/礼金 | 6ヶ月/0ヶ月 | 内見・入居 | 相談 |
| 間取り | 事務所 | 面積 | 71.27m² |
| 所在階 | 地上5階 | 最大スペース | |
| 住所 | 東京都中央区銀座2丁目12番5号 | 最寄駅 | 都営浅草線「東銀座」駅徒歩3分 東京メトロ有楽町線「銀座一丁目」駅徒歩4分 東京メトロ銀座線「銀座」駅徒歩6分 |
| その他交通 | 築年月 | 1992年03月 | |
| 方角 | 構造 | 鉄骨鉄筋コンクリート造(SRC造) 9階建 | |
| 契約期間 | 応相談 | 契約形態 | 普通借家 |
| 償却 | 20% | 設備 | エレベーター |
| 更新料 | 1ヶ月 | 更新日 | 2025年09月11日 |
| 備考 | |||



お問い合わせの際は、「部屋No.66236」とお伝えください。





























1992年竣工、清潔感のあるグレーの石張りの外観の建物です。1階にお花屋さんがあり目印になります。新耐震基準をクリアした建物です。
基準となるフロアは約22坪とコンパクトながら、男女別のトイレがあり使い勝手も良好です。
セキュリティは機械警備を完備しており、安心してご利用いただけます。
昭和通りから東へ1本入った場所に立地しており、周辺は比較的落ち着いた環境です。
東銀座駅周辺は飲食店も多くランチも便利。銀座駅へも徒歩6分の好立地です!