推奨利用人数
15人~19人
【成約済み】Akiba1131ビル 8階
- 所在地:東京都千代田区外神田1丁目13番1号
- 交通:JR山手線「秋葉原」駅徒歩1分
- 交通2:東京メトロ銀座線「末広町」駅徒歩6分
- 交通3:JR中央線「御茶ノ水」駅徒歩11分
| 賃料:-- (税別) | 管理費:0円 (税別) |
| 敷金:10ヶ月- | 礼金:1ヶ月 |
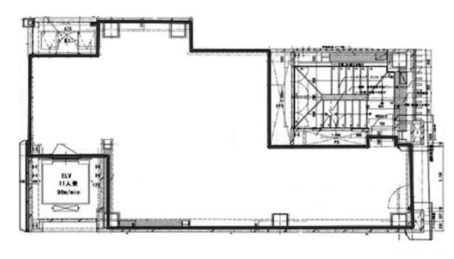
| 面積:90.21m² | 所在階:地上8階 |
| 間取り:事務所 | 築年月:2014年06月 |
| 賃料/管理費 | -- (税別)/0円 (税別) | フリーレント | 0ヶ月 |
|---|---|---|---|
| 敷金/礼金 | 10ヶ月/1ヶ月 | 内見・入居 | 相談 |
| 間取り | 事務所 | 面積 | 90.21m² |
| 所在階 | 地上8階 | 最大スペース | |
| 住所 | 東京都千代田区外神田1丁目13番1号 | 最寄駅 | JR山手線「秋葉原」駅徒歩1分 東京メトロ銀座線「末広町」駅徒歩6分 JR中央線「御茶ノ水」駅徒歩11分 |
| その他交通 | 築年月 | 2014年06月 | |
| 方角 | 構造 | 鉄筋コンクリート造(RC造) 10階建 | |
| 契約期間 | 5年間 | 契約形態 | 普通借家 |
| 償却 | 1ヶ月 | 設備 | エレベーター |
| 更新料 | 1ヶ月 | 更新日 | 2025年09月11日 |
| 備考 | |||



お問い合わせの際は、「部屋No.66414」とお伝えください。





























2014年竣工、シルバーのパネルと大きな窓がスタイリッシュな印象の建物です。新耐震基準をクリアしています。
基準となるフロアは1フロア約27坪。EV1基、1フロア1テナント利用のオフィスです。
ビル内は店舗が多く入居しており、上層階は事務所フロアとなっています。
周辺はたくさんの店舗が並ぶ賑やかで人通りの多いエリア。ランチにピッタリな飲食店も多く便利です。