推奨利用人数
13人~14人
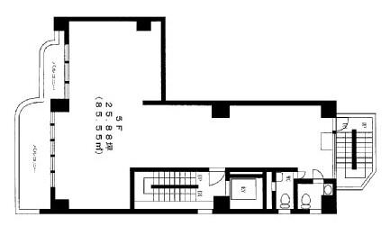
【成約済み】相模屋第2ビル 7階
- 所在地:東京都千代田区一番町10番
- 交通:東京メトロ半蔵門線「半蔵門」駅徒歩3分
- 交通2:東京メトロ有楽町線「麹町」駅徒歩4分
- 交通3:JR中央・総武線「市ケ谷」駅徒歩11分
| 賃料:-- (税別) | 管理費:0円 (税別) |
| 敷金:10ヶ月- | 礼金:0ヶ月 |
| 面積:85.55m² | 所在階:地上7階 |
| 間取り:事務所 | 築年月:1980年03月 |
| 賃料/管理費 | -- (税別)/0円 (税別) | フリーレント | 0ヶ月 |
|---|---|---|---|
| 敷金/礼金 | 10ヶ月/0ヶ月 | 内見・入居 | 相談 |
| 間取り | 事務所 | 面積 | 85.55m² |
| 所在階 | 地上7階 | 最大スペース | |
| 住所 | 東京都千代田区一番町10番 | 最寄駅 | 東京メトロ半蔵門線「半蔵門」駅徒歩3分 東京メトロ有楽町線「麹町」駅徒歩4分 JR中央・総武線「市ケ谷」駅徒歩11分 |
| その他交通 | 築年月 | 1980年03月 | |
| 方角 | 構造 | 鉄骨鉄筋コンクリート造(SRC造) 7階建 | |
| 契約期間 | 応相談 | 契約形態 | 定期借家 |
| 償却 | 1ヶ月 | 設備 | エレベーター |
| 更新料 | 1ヶ月 | 更新日 | 2025年09月11日 |
| 備考 | |||



お問い合わせの際は、「部屋No.66658」とお伝えください。





























1980年竣工、外観はレンガ調のタイル張りの落ち着いた雰囲気の建物です。お隣が郵便局になっていて目印になります。
1フロア1テナント利用のオフィスは、男女別トイレが室内にあり使い勝手も良好!
セキュリティは機械警備で24時間安心してご利用いただけます。
最寄駅は「半蔵門駅」、麹町駅へも徒歩4分で利用することができますのでアクセスの良いオフィスです。
複数路線が利用可能な市ヶ谷駅へも徒歩11分です!