推奨利用人数
15人~19人
【成約済み】SNS東日本橋ビル 4階
- 所在地:東京都中央区東日本橋1丁目2番6号
- 交通:都営浅草線「東日本橋」駅徒歩2分
- 交通2:都営新宿線「馬喰横山」駅徒歩4分
- 交通3:東京メトロ日比谷線「小伝馬町」駅徒歩10分
| 賃料:相談 (税別) | 管理費:相談 (税別) |
| 敷金:10ヶ月- | 礼金:0ヶ月 |
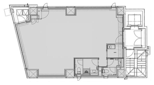
| 面積:90.02m² | 所在階:地上4階 |
| 間取り:事務所 | 築年月:2023年02月 |
| 賃料/管理費 | 相談 (税別)/相談 (税別) | フリーレント | 0ヶ月 |
|---|---|---|---|
| 敷金/礼金 | 10ヶ月/0ヶ月 | 内見・入居 | 内見可 |
| 間取り | 事務所 | 面積 | 90.02m² |
| 所在階 | 地上4階 | 最大スペース | |
| 住所 | 東京都中央区東日本橋1丁目2番6号 | 最寄駅 | 都営浅草線「東日本橋」駅徒歩2分 都営新宿線「馬喰横山」駅徒歩4分 東京メトロ日比谷線「小伝馬町」駅徒歩10分 |
| その他交通 | JR総武本線「馬喰町」駅6分 | 築年月 | 2023年02月 |
| 方角 | 構造 | 鉄筋コンクリート造(RC造) 8階建 | |
| 契約期間 | 2年間 | 契約形態 | 普通借家 |
| 償却 | 0ヶ月 | 設備 | エレベーター , OAフロア |
| 更新料 | 0ヶ月 | 更新日 | 2025年09月11日 |
| 備考 | |||



お問い合わせの際は、「部屋No.66711」とお伝えください。





























2022年2月竣工、白い外壁の清潔感のある建物です。新耐震基準をクリアしています。
基準となるフロアは1フロア約27坪。EV1基、1フロア1テナント利用のオフィスです。
室内に男女別のトイレと給湯室があり、コンパクトながら使い勝手も良好。OAフロア、個別空調、機械警備など設備も充実しています。
駅前大通りから少し入った場所に立地。周辺には飲食店やコンビニ、郵便局などもあり利便性も良好です。