推奨利用人数
25人~29人
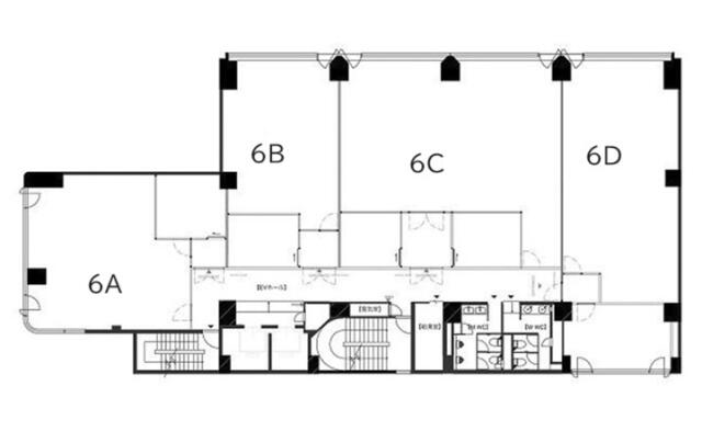
FRAME日本橋 6C号室
- 所在地:東京都中央区日本橋久松町9番9号
- 交通:都営新宿線「浜町」駅徒歩3分
- 交通2:東京メトロ日比谷線「人形町」駅徒歩5分
- 交通3:東京メトロ半蔵門線「水天宮前」駅徒歩10分
| 賃料:1,235,040円 (税別) | 管理費:0円 (税別) |
| 敷金:相談- | 礼金:0ヶ月 |
| 面積:170.12m² | 所在階:地上6階 |
| 間取り:事務所 | 築年月:1989年07月 |
| 賃料/管理費 | 1,235,040円 (税別)/0円 (税別) | フリーレント | 0ヶ月 |
|---|---|---|---|
| 敷金/礼金 | 相談/0ヶ月 | 内見・入居 | 内見可 |
| 間取り | 事務所 | 面積 | 170.12m² |
| 所在階 | 地上6階 | 最大スペース | |
| 住所 | 東京都中央区日本橋久松町9番9号 | 最寄駅 | 都営新宿線「浜町」駅徒歩3分 東京メトロ日比谷線「人形町」駅徒歩5分 東京メトロ半蔵門線「水天宮前」駅徒歩10分 |
| その他交通 | 築年月 | 1989年07月 | |
| 方角 | 構造 | 鉄骨鉄筋コンクリート造(SRC造) 9階建 | |
| 契約期間 | 2年間 | 契約形態 | 普通借家 |
| 償却 | 0ヶ月 | 設備 | エレベーター , OAフロア |
| 更新料 | 0ヶ月 | 更新日 | 2025年09月11日 |
| 備考 | ・6C号室:セットアップオフィス | ||



お問い合わせの際は、「部屋No.66733」とお伝えください。





























1989年竣工のオフィスビル。2020年夏、内外装をリノベーションしおしゃれなオフィスへ生まれ変わりました。
外壁に木目調のルーバーを配し、緑化することで温かみのある外観デザインへとリニューアル。
1階エントランスホールにはラウンジが設置され、訪れるお客様からの印象も良いでしょう!
基準となるフロアは1フロア約150坪。EVは2基設置されていますのでストレスなくご利用いただけます。
募集時期やフロアにより分割区画のご紹介もございます。
フロアごとに男女別のトイレと給湯室を完備、機械警備やOAフロアなどの設備も一新されています。
周辺はオフィス街、飲食店やコンビニも多く並びランチ処も多数ございます。