推奨利用人数
15人~19人
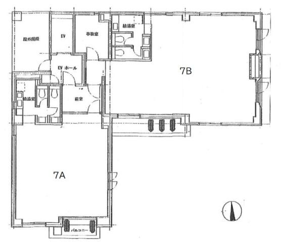
【成約済み】パークサイドアネックスビル 7B号室
- 所在地:東京都千代田区三番町1番17号
- 交通:東京メトロ半蔵門線「半蔵門」駅徒歩5分
- 交通2:東京メトロ有楽町線「麹町」駅徒歩10分
- 交通3:都営新宿線「市ケ谷」駅徒歩11分
| 賃料:-- (税別) | 管理費:0円 (税別) |
| 敷金:6ヶ月- | 礼金:0ヶ月 |
| 面積:97.02m² | 所在階:地上7階 |
| 間取り:事務所 | 築年月:1978年04月 |
| 賃料/管理費 | -- (税別)/0円 (税別) | フリーレント | 0ヶ月 |
|---|---|---|---|
| 敷金/礼金 | 6ヶ月/0ヶ月 | 内見・入居 | 内見可 |
| 間取り | 事務所 | 面積 | 97.02m² |
| 所在階 | 地上7階 | 最大スペース | |
| 住所 | 東京都千代田区三番町1番17号 | 最寄駅 | 東京メトロ半蔵門線「半蔵門」駅徒歩5分 東京メトロ有楽町線「麹町」駅徒歩10分 都営新宿線「市ケ谷」駅徒歩11分 |
| その他交通 | 築年月 | 1978年04月 | |
| 方角 | 構造 | 鉄骨鉄筋コンクリート造(SRC造) 7階建 | |
| 契約期間 | 2年間 | 契約形態 | 普通借家 |
| 償却 | 1ヶ月 | 設備 | エレベーター , OAフロア |
| 更新料 | 更新日 | 2025年09月11日 | |
| 備考 | |||



お問い合わせの際は、「部屋No.66882」とお伝えください。





























1978年竣工、レンガ造りの重厚な外観の建物です。内堀通り「墓苑入口」交差点角地に立地しています。
ビル前面には千鳥ヶ淵公園の豊かな緑が広がります。
基準となるフロアは1フロア約50坪。お部屋によって住居区画、事務所やSOHO利用可能なお部屋もございます。
EV1基、エントランスはオートロックが報じ作動していますので安心です。