推奨利用人数
9人~10人
【成約済み】マガザン東池袋 101号室
- 所在地:東京都豊島区東池袋2丁目50番13号
- 交通:JR山手線「池袋」駅徒歩11分
- 交通2:JR山手線「大塚」駅徒歩12分
- 交通3:東京メトロ有楽町線「東池袋」駅徒歩11分
| 賃料:-- (税別) | 管理費:0円 (税別) |
| 敷金:6ヶ月- | 礼金:1ヶ月 |
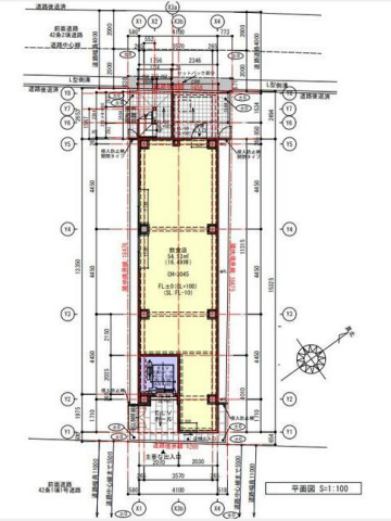
| 面積:54.53m² | 所在階:地上1階 |
| 間取り:事務所 | 築年月:2022年10月 |
| 賃料/管理費 | -- (税別)/0円 (税別) | フリーレント | 0ヶ月 |
|---|---|---|---|
| 敷金/礼金 | 6ヶ月/1ヶ月 | 内見・入居 | 内見可 |
| 間取り | 事務所 | 面積 | 54.53m² |
| 所在階 | 地上1階 | 最大スペース | |
| 住所 | 東京都豊島区東池袋2丁目50番13号 | 最寄駅 | JR山手線「池袋」駅徒歩11分 JR山手線「大塚」駅徒歩12分 東京メトロ有楽町線「東池袋」駅徒歩11分 |
| その他交通 | 築年月 | 2022年10月 | |
| 方角 | 構造 | 鉄骨構造(S造) 8階建 | |
| 契約期間 | 3年間 | 契約形態 | |
| 償却 | 0ヶ月 | 設備 | エレベーター |
| 更新料 | 1ヶ月 | 更新日 | 2025年09月11日 |
| 備考 | ・1階はスケルトン渡しです | ||
| その他費用 | ・賃貸保証:加入要 | ||



お問い合わせの際は、「部屋No.67047」とお伝えください。





























視認性が高い物件です!
ビックターミナル池袋駅より徒歩11分、多路線利用可能で交通アクセス良好です。
貸室は1フロア1テナントで気兼ねなく利用でき、ガラス張りなので採光が良く明るいオフィスになります。
周辺は飲食店だけでなく商業施設なども連なり、ランチ環境も充実しています!