推奨利用人数
11人~12人
第2秋山ビルディング 5階
- 所在地:東京都港区虎ノ門3丁目6番2号
- 交通:東京メトロ銀座線「虎ノ門」駅徒歩7分
- 交通2:東京メトロ日比谷線「神谷町」駅徒歩7分
- 交通3:東京メトロ南北線「溜池山王」駅徒歩8分
| 賃料:相談 | 管理費:相談 |
| 敷金:12ヶ月- | 礼金:0ヶ月 |
| 面積:105.59m² | 所在階:地上5階 |
| 間取り:事務所 | 築年月:1975年02月 |
| 賃料/管理費 | 相談/相談 | フリーレント | 0ヶ月 |
|---|---|---|---|
| 敷金/礼金 | 12ヶ月/0ヶ月 | 内見・入居 | 内見可 |
| 間取り | 事務所 | 面積 | 105.59m² |
| 所在階 | 地上5階 | 最大スペース | |
| 住所 | 東京都港区虎ノ門3丁目6番2号 | 最寄駅 | 東京メトロ銀座線「虎ノ門」駅徒歩7分 東京メトロ日比谷線「神谷町」駅徒歩7分 東京メトロ南北線「溜池山王」駅徒歩8分 |
| その他交通 | 東京メトロ千代田線「霞が関」駅徒歩11分 | 築年月 | 1975年02月 |
| 方角 | 構造 | 鉄骨鉄筋コンクリート造(SRC造) 9階建 | |
| 契約期間 | 2年間 | 契約形態 | 定期借家 |
| 償却 | 0ヶ月 | 設備 | エレベーター |
| 更新料 | 更新日 | 2025年10月03日 | |
| 備考 | |||



お問い合わせの際は、「部屋No.71751」とお伝えください。





























1975年竣工、士問い吹き付けの外観の建物です。
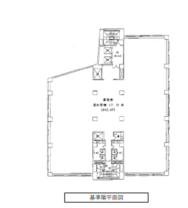
基準となるオフィスは1フロア約170坪、募集時期により分割区画もございます。
EVは2基、忙しい時間帯もノンストレスでご利用可能です。共用部に男女別のトイレがありますので、貸室内は効率よくレイアウトすることが可能です。セキュリティは機械警備を導入しております。
最寄の虎ノ門駅からは徒歩7分。近くに「ホテルオークラ東京」や「虎ノ門ヒルズ」があります。