推奨利用人数
15人~19人
NCO神田須田町(旧:芙蓉神田須田町ビルディング) 2階
- 所在地:東京都千代田区神田須田町1丁目4番
- 交通:東京メトロ丸の内線「淡路町」駅徒歩2分
- 交通2:都営新宿線「小川町」駅徒歩2分
- 交通3:東京メトロ千代田線「新御茶ノ水」駅徒歩3分
| 賃料:678,240円 (税別) | 管理費:0円 (税別) |
| 敷金:12ヶ月- | 礼金:0ヶ月 |
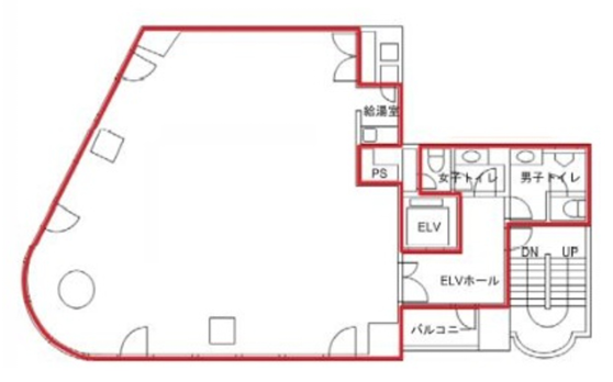
| 面積:124.59m² | 所在階:地上2階 |
| 間取り:事務所 | 築年月:1991年04月 |
| 賃料/管理費 | 678,240円 (税別)/0円 (税別) | フリーレント | 0ヶ月 |
|---|---|---|---|
| 敷金/礼金 | 12ヶ月/0ヶ月 | 内見・入居 | 内見可 |
| 間取り | 事務所 | 面積 | 124.59m² |
| 所在階 | 地上2階 | 最大スペース | |
| 住所 | 東京都千代田区神田須田町1丁目4番 | 最寄駅 | 東京メトロ丸の内線「淡路町」駅徒歩2分 都営新宿線「小川町」駅徒歩2分 東京メトロ千代田線「新御茶ノ水」駅徒歩3分 |
| その他交通 | 築年月 | 1991年04月 | |
| 方角 | 構造 | 鉄骨鉄筋コンクリート造(SRC造) 9階建 | |
| 契約期間 | 3年間 | 契約形態 | 定期借家 |
| 償却 | 0ヶ月 | 設備 | エレベーター |
| 更新料 | 相談 | 更新日 | 2025年10月10日 |
| 備考 | |||



お問い合わせの際は、「部屋No.71809」とお伝えください。





























1991年竣工、白いパネルと白いタイル貼りで清潔感のある外観が特徴です。新耐震基準をクリアしています。
基準となるフロアは1フロア約37坪。EV1基、1フロア1テナント利用のオフィスです。
個別空調・機械警備完備・24時間使用可能でさまざまなワークスタイルに対応できます。