推奨利用人数
40人以上
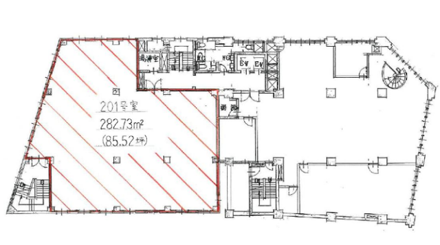
第1電波ビル 201号室
- 所在地:東京都千代田区外神田2丁目4番4号
- 交通:JR山手線「秋葉原」駅徒歩5分
- 交通2:東京メトロ銀座線「末広町」駅徒歩7分
- 交通3:JR中央・総武線「御茶ノ水」駅徒歩5分
| 賃料:1,128,864円 | 管理費:282,216円 |
| 敷金:10ヶ月- | 礼金:0ヶ月 |
| 面積:282.73m² | 所在階:地上2階 |
| 間取り:事務所 | 築年月:1956年01月 |
| 賃料/管理費 | 1,128,864円/282,216円 | フリーレント | 0ヶ月 |
|---|---|---|---|
| 敷金/礼金 | 10ヶ月/0ヶ月 | 内見・入居 | 内見可 |
| 間取り | 事務所 | 面積 | 282.73m² |
| 所在階 | 地上2階 | 最大スペース | |
| 住所 | 東京都千代田区外神田2丁目4番4号 | 最寄駅 | JR山手線「秋葉原」駅徒歩5分 東京メトロ銀座線「末広町」駅徒歩7分 JR中央・総武線「御茶ノ水」駅徒歩5分 |
| その他交通 | 築年月 | 1956年01月 | |
| 方角 | 構造 | 鉄骨鉄筋コンクリート造(SRC造) 8階建 | |
| 契約期間 | 2年間 | 契約形態 | 普通借家 |
| 償却 | 0ヶ月 | 設備 | エレベーター , OAフロア |
| 更新料 | 0ヶ月 | 更新日 | 2025年10月10日 |
| 備考 | |||



お問い合わせの際は、「部屋No.71810」とお伝えください。





























1964年竣工、上品なベージュ色の外壁の建物です。耐震補強工事実施済みで安心です。
「神田明神下交差点」角地に立地しており、視認性良好!お客様をご案内する際にもわかりやすい立地です。
基準となるフロアは1フロア約106坪。EV2基、共用部に男女別のトイレや給湯室があります。個別空調や機械警備など設備も充実しています。
周辺はオフィスが多いエリア。コンビニや飲食店、郵便局などが近くにあり利便性も良好です!