推奨利用人数
40人以上
東神田堀商ビル 3階
- 所在地:東京都千代田区東神田2丁目4番5号
- 交通:都営新宿線「岩本町」駅徒歩4分
- 交通2:JR山手線「秋葉原」駅徒歩5分
- 交通3:JR中央・総武線「浅草橋」駅徒歩6分
| 賃料:1,385,824円 | 管理費:312,928円 |
| 敷金:12ヶ月- | 礼金:1ヶ月 |
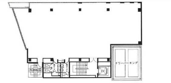
| 面積:268.69m² | 所在階:地上3階 |
| 間取り:事務所 | 築年月:1989年06月 |
| 賃料/管理費 | 1,385,824円/312,928円 | フリーレント | 0ヶ月 |
|---|---|---|---|
| 敷金/礼金 | 12ヶ月/1ヶ月 | 内見・入居 | 空き予定 時期2月上旬 |
| 間取り | 事務所 | 面積 | 268.69m² |
| 所在階 | 地上3階 | 最大スペース | |
| 住所 | 東京都千代田区東神田2丁目4番5号 | 最寄駅 | 都営新宿線「岩本町」駅徒歩4分 JR山手線「秋葉原」駅徒歩5分 JR中央・総武線「浅草橋」駅徒歩6分 |
| その他交通 | 都営浅草線「東日本橋」駅10分 | 築年月 | 1989年06月 |
| 方角 | 構造 | 鉄骨構造(S造) 7階建 | |
| 契約期間 | 2年間 | 契約形態 | 普通借家 |
| 償却 | 1ヶ月 | 設備 | エレベーター , OAフロア |
| 更新料 | 1ヶ月 | 更新日 | 2025年10月10日 |
| 備考 | |||
| その他費用 | ・駐車場あり:50,000円(税別) | ||



お問い合わせの際は、「部屋No.71812」とお伝えください。





























柳原通り
複数路線利用可能で交通アクセス良好
赤茶の石貼り&ガラス貼りの外観
1階には郵便局が入っていて便利
タワーパーキングを併設
管理人常駐でセキュリティ面も安心です
機械警備
個別空調
OAフロア
光ケーブル引込可
24時間使用可
男女別トイレ